幡ヶ谷駅徒歩2分の居抜きオフィス
問い合わせ番号:48951
物件情報
- 賃料
330,000円
- 敷金・保証金
- 6ヵ月
- 礼金
- 無し
- 償却等
- 更新料:1ヵ月
償却:1ヵ月
- 所在地
- 渋谷区幡ヶ谷
- 交通
- 京王新線「幡ヶ谷」2分
- 構造規模
-
鉄骨造
地下1階 地上8階
- 契約面積
- 46.85m²(約14.17坪)
- 所在階
- 5階
入居可能時期
2026年5月中旬
備考
京王新線幡ヶ谷駅徒歩2分、京王線初台駅徒歩10分、 東京メトロ千代田線代々木上原駅徒歩13分、
2021年9月竣工、鉄骨造、地上8階・地下1階建ての賃貸オフィス。
エレベーター1基、24時間使用可能、個別空調・トイレ男女別。
周辺にはローソンやドトールがあります。このエリアの居抜きオフィス、
4名用の会議室スペースが設置済み。執務室は6名前後でのご利用を想定。
幡ヶ谷の内装付きオフィスです。
会員限定公開情報は
無料会員登録後に閲覧いただけます
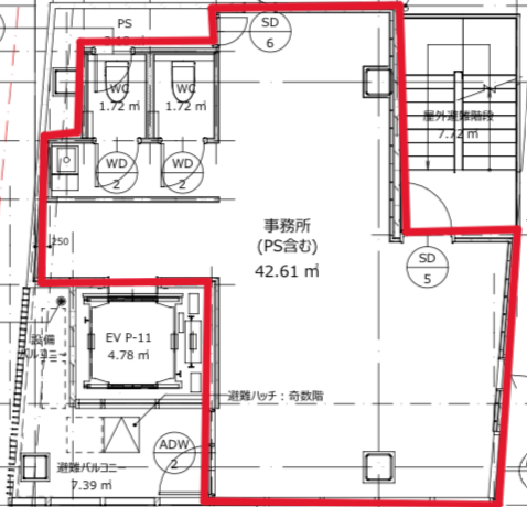
間取り

同じエリアのおすすめ物件

敷金・原状回復工事無し!渋谷エリアのフルセットアップオフィス
渋谷区渋谷
112.98m²〔34.18坪〕
112.98m²〔34.18坪〕
1,640,160円

敷金・原状回復工事無し!渋谷エリアのフルセットアップオフィス
渋谷区渋谷
112.98m²〔34.18坪〕
112.98m²〔34.18坪〕
1,640,160円

明治神宮前駅徒歩2分の居抜きオフィス
渋谷区神宮前
236.83m²〔71.64坪〕
236.83m²〔71.64坪〕
相談

神宮前エリアのコンパクトオフィス
渋谷区神宮前
82.09m²〔24.83坪〕
82.09m²〔24.83坪〕
400,000円

表参道駅徒歩3分の好立地1棟貸し物件
渋谷区神宮前
328.93m²〔99.50坪〕
328.93m²〔99.50坪〕
4,600,000円

駐車場設備有!代官山駅徒歩圏のフルリノベオフィス
渋谷区代官山町
95.00m²〔28.74坪〕
95.00m²〔28.74坪〕
452,545円
物件情報
- 賃料
330,000円
- 敷金・保証金
- 6ヵ月
- 礼金
- 無し
- 償却等
- 更新料:1ヵ月
償却:1ヵ月
- 所在地
- 渋谷区幡ヶ谷
- 交通
- 京王新線「幡ヶ谷」2分
- 構造規模
-
鉄骨造
地下1階 地上8階
- 契約面積
- 46.85m²(約14.17坪)
- 所在階
- 5階
入居可能時期
2026年5月中旬
受付時間:平日9:00~18:00


