敷金無し!浜松町駅徒歩圏のセットアップオフィス
問い合わせ番号:51726
物件情報
- 賃料
912,640円
- 敷金・保証金
-
無し
※保証会社に加入することにより敷金0相談
審査の内容によっては敷金が積み増しになる可能性があります。
- 礼金
- 無し
- 償却等
- 更新料:1ヵ月
- 所在地
- 港区芝大門
- 交通
- 浅草線・大江戸線「大門」3分
三田線「御成門」6分
JR・東京モノレール「浜松町」8分
- 構造規模
-
鉄筋コンクリート造
地下1階 地上5階
- 契約面積
- 97.33m²(約29.44坪)
- 所在階
- 4階
入居可能時期
2026年5月上旬
備考
都営大江戸線・都営浅草線大門駅徒歩3分、都営三田線御成門駅徒歩6分、JR山手線、京浜東北線浜松町駅徒歩8分、
芝公園駅・汐留駅も徒歩圏。1984年竣工、2026年3月に大規模リニューアル工事。
鉄筋コンクリート造地上5階・地下1階の賃貸オフィス。エレベーター1基、個別空調、機械警備、24時間利用可能、OAフロア、
周辺は第一京浜から一本入った落ち着いた雰囲気の環境。ランチ・ディナー利用に便利な飲食店が豊富。
コンビニエンスストアやカフェ、郵便局、銀行ATM、ドラッグストアなどの生活インフラも徒歩圏。
芝公園・増上寺があり、気分転換にも最適です。このエリアのセットアップオフィス、
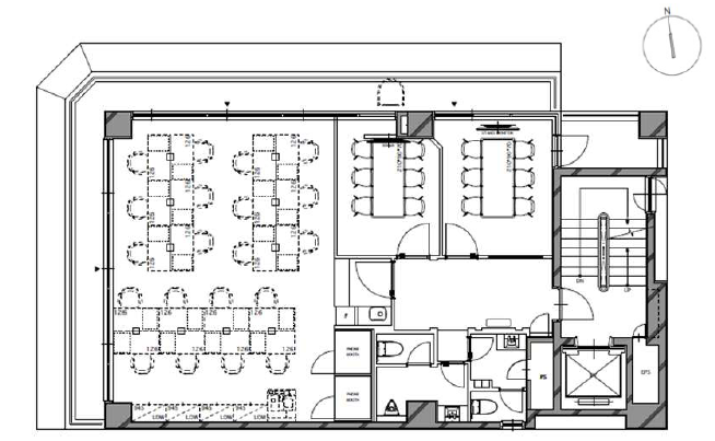
6名用×2の個室会議室と個室ブース2ヵ所が設置済み。執務室は20名でのご利用を想定。
大門の内装付きオフィスです。
会員限定公開情報は
無料会員登録後に閲覧いただけます
間取り

物件情報
- 賃料
912,640円
- 敷金・保証金
-
無し
※保証会社に加入することにより敷金0相談
審査の内容によっては敷金が積み増しになる可能性があります。
- 礼金
- 無し
- 償却等
- 更新料:1ヵ月
- 所在地
- 港区芝大門
- 交通
- 浅草線・大江戸線「大門」3分
三田線「御成門」6分
JR・東京モノレール「浜松町」8分
- 構造規模
-
鉄筋コンクリート造
地下1階 地上5階
- 契約面積
- 97.33m²(約29.44坪)
- 所在階
- 4階
入居可能時期
2026年5月上旬
受付時間:平日9:00~18:00










