芝浦エリアのセットアップオフィス
問い合わせ番号:51416
物件情報
- 賃料
788,640円
- 敷金・保証金
- 5カ月
- 礼金
- 無し
- 償却等
- 更新料:1カ月
償却:1カ月
- 所在地
- 港区芝浦
- 交通
- JR「田町」8分
三田線・浅草線「三田」10分
- 構造規模
-
鉄骨造
地上6階
- 契約面積
- 108.64m²(約32.86坪)
- 所在階
- 4階
入居可能時期
2026/07/22
備考
JR 田町駅まで徒歩8分、都営浅草線 三田駅まで徒歩10分、ゆりかもめ 芝浦ふ頭駅まで徒歩10分
都営三田線 三田駅まで徒歩10分、1992年1月竣工、鉄骨造6階建の賃貸オフィス。
EV 1基、OAフロア、個別空調、トイレ専用男女別洋式、機械警備。
大規模再開発で大きく変わった田町駅芝浦口、ムスブには多くの商業施設があり非常に便利になったエリア。
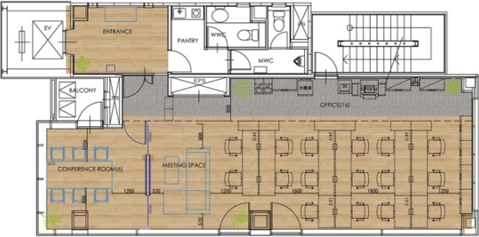
運河に囲まれたウォーターフロントの賃貸オフィス。スケルトン天井にフローリングと最近のトレンドの内装で6名用の会議室も設置済み。
コストを抑え移転されたい方に打ってつけ、15名~20名の企業向け、芝浦の内装付きオフィスです。
会員限定公開情報は
無料会員登録後に閲覧いただけます
間取り

同じエリアのおすすめ物件

浜松町駅徒歩圏の居抜きオフィス
港区浜松町
219.62m²〔66.44坪〕
219.62m²〔66.44坪〕
1,395,030円

品川駅徒歩圏の築浅シェアオフィス
港区高輪
113.91m²〔34.46坪〕
113.91m²〔34.46坪〕
1,570,000円

新橋エリアのバルコニー付きオフィス
港区東新橋
159.55m²〔48.26坪〕
159.55m²〔48.26坪〕
相談

赤坂エリアの居抜きオフィス
港区赤坂
184.24m²〔55.73坪〕
184.24m²〔55.73坪〕
相談

共用部充実!青山一丁目駅付近のフルリノベオフィス
港区赤坂
83.72m²〔25.33坪〕
83.72m²〔25.33坪〕
680,000円

ルーフトップ専用使用可能!表参道駅徒歩圏の居抜きオフィス
港区南青山
164.74m²〔49.83坪〕
164.74m²〔49.83坪〕
2,790,480円
物件情報
- 賃料
788,640円
- 敷金・保証金
- 5カ月
- 礼金
- 無し
- 償却等
- 更新料:1カ月
償却:1カ月
- 所在地
- 港区芝浦
- 交通
- JR「田町」8分
三田線・浅草線「三田」10分
- 構造規模
-
鉄骨造
地上6階
- 契約面積
- 108.64m²(約32.86坪)
- 所在階
- 4階
入居可能時期
2026/07/22
受付時間:平日9:00~18:00



