仲介手数料無料
品川駅徒歩圏の居抜きオフィス
問い合わせ番号:47906
物件情報
- 賃料
- 相談
- 敷金・保証金
- 相談
- 礼金
- 無し
- 所在地
- 港区港南
- 交通
- JR・京急線「品川」7分
- 構造規模
-
鉄筋鉄骨コンクリート造
地下1階 地上7階
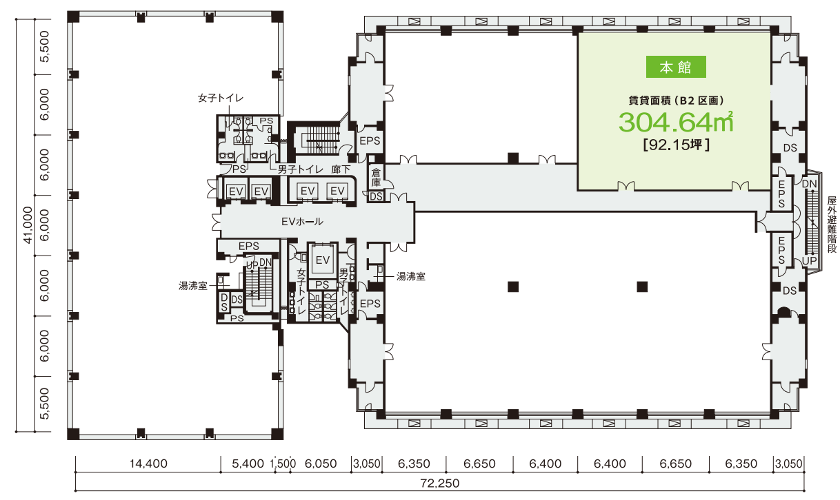
- 契約面積
- 304.64m²(約92.15坪)
- 所在階
- 5階
入居可能時期
相談
備考
JR各線品川駅徒歩7分、京急線品川駅も10分、1985年9月竣工、リニューアル実施済み。地上7階、地下1階の旧海岸通り沿いの賃貸オフィス。
天井高本館 約2,550mm、別館 約2,800mm、 個別空調、OAフロア、男女別トイレ、駐車場あり。 1階にはコンビニが入居中。
周辺には大型オフィスビルや大型商業施設があり、品川駅までの導線には飲食店やカフェも多い。
このエリアの居抜きオフィス、ご興味のある方はお問合せください。
品川の内装付きオフィスです。
会員限定公開情報は
無料会員登録後に閲覧いただけます
間取り

同じエリアのおすすめ物件

敷金・原状回復工事無し!乃木坂駅付近のフルセットアップオフィス
港区赤坂
100.78m²〔30.49坪〕
100.78m²〔30.49坪〕
1,600,000円

田町駅付近のフルセットアップオフィス
港区芝
190.87m²〔57.74坪〕
190.87m²〔57.74坪〕
1,905,090円

六本木のランドマークタワーの居抜きオフィス
湊区六本木
884m²〔267.41坪〕
884m²〔267.41坪〕
相談

虎ノ門エリアの大型居抜きオフィス
港区虎ノ門
517.01m²〔156.40坪〕
517.01m²〔156.40坪〕
相談

赤坂エリアのフルリノベオフィス
港区赤坂
78.00m²〔23.60坪〕
78.00m²〔23.60坪〕
449,000円

赤坂エリアのシンプルな居抜きオフィス
港区赤坂
105.46m²〔31.90坪〕
105.46m²〔31.90坪〕
510,400円
物件情報
- 賃料
- 相談
- 敷金・保証金
- 相談
- 礼金
- 無し
- 所在地
- 港区港南
- 交通
- JR・京急線「品川」7分
- 構造規模
-
鉄筋鉄骨コンクリート造
地下1階 地上7階
- 契約面積
- 304.64m²(約92.15坪)
- 所在階
- 5階
入居可能時期
相談
受付時間:平日9:00~18:00






