仲介手数料無料

市ヶ谷駅付近のセットアップオフィス

問い合わせ番号:54313

市ヶ谷駅付近のセットアップオフィス

執務室スペース

渋いエントランススペース

物件情報

賃料

1,168,860

敷金・保証金
6ヵ月
礼金
無し
償却等
再契約料:1ヵ月
所在地
新宿区市谷田町
交通
JR・新宿線・南北線等「市ヶ谷」2分
大江戸線「牛込神楽坂」11分
構造規模
鉄筋鉄骨コンクリート造
地下2階 地上9階
契約面積
168.00m²(約50.82坪)
所在階
3階

入居可能時期

2026/07/01

備考

JR中央・総武線、東京メトロ有楽町線・南北線、都営新宿線市ヶ谷駅徒歩2分、
1993年6月竣工、鉄骨鉄筋コンクリート造、地上9階、地下2階建ての賃貸オフィス。
個別空調、エレベーター1基、機械警備、24時間利用可能、
周辺にはカフェ・ランチ店・居酒屋などが多数あります。セブンイレブン、ファミリーマート、
みずほ銀行、三菱UFJ銀行、郵便局など生活インフラも充実。
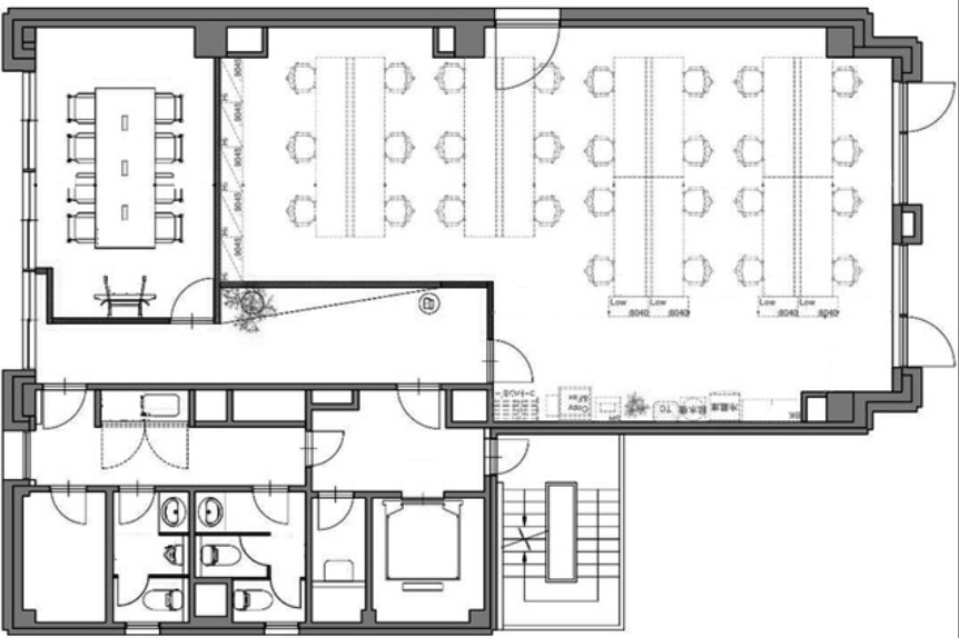
このエリアのセットアップオフィス、8名用の個室会議室が設置済み。執務室は最大28名でのご利用を想定。
市ヶ谷の内装付きオフィスです。

会員限定公開情報
無料会員登録後に閲覧いただけます

間取り

物件情報

賃料

1,168,860

敷金・保証金
6ヵ月
礼金
無し
償却等
再契約料:1ヵ月
所在地
新宿区市谷田町
交通
JR・新宿線・南北線等「市ヶ谷」2分
大江戸線「牛込神楽坂」11分
構造規模
鉄筋鉄骨コンクリート造
地下2階 地上9階
契約面積
168.00m²(約50.82坪)
所在階
3階

入居可能時期

2026/07/01

03-6260-9380

受付時間:平日9:00~18:00

現在の検索結果

気になる物件のご質問、ご要望、内覧等は
お問い合わせフォーム または
お電話 でご連絡ください。

03-6260-9380

営業時間:平日9:00~18:00

×

条件で物件を探す

エリア

広さ

坪 ~

こだわり

キャンセル