仲介手数料無料
新宿エリアのセットアップオフィス
問い合わせ番号:48217
物件情報
- 賃料
- 相談
- 敷金・保証金
- 相談
- 礼金
- 無し
- 償却等
- ※室内写真は別区画のイメージとなります
- 所在地
- 新宿区新宿
- 交通
- 丸ノ内線「新宿御苑前」1分
新宿線・副都心線「新宿三丁目」5分
JR・小田急線・京王線等「新宿」13分
- 構造規模
-
鉄筋鉄骨コンクリート造
地下2階 地上8階
- 契約面積
- 240.83m²(約72.85坪)
- 所在階
- 2階
入居可能時期
即日入居可
備考
東京メトロ丸の内線新宿御苑駅1番出口を降りるとすぐこの物件にたどり着く。
東京メトロ丸の内線、副都心線、都営新宿線新宿三丁目駅も近く、新宿駅も徒歩圏の好立地。
新宿通りに面したフルリノベオフィス。周辺には、その名の通り新宿御苑があり、四季折々の花々や自然を楽しむことができます。
また、駅周辺には飲食店や商業施設も多く、生活に必要なものはほとんど揃います。
新宿三丁目駅の近くには伊勢丹新宿店があり、高級なアイテムを取り扱っています。
また、駅周辺は都会的な雰囲気と自然が混在しており、新宿の中でも特異なエリアと言えるでしょう。
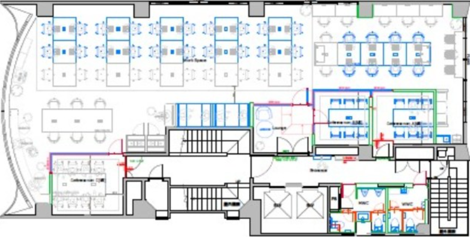
このエリアのセットアップオフィスで、6名用×2・8名用の個室会議室が設置済み。
執務室は最大50名前後でのご利用を想定。新宿の内装付きオフィスです。
会員限定公開情報は
無料会員登録後に閲覧いただけます
間取り

同じエリアのおすすめ物件

スタートアップ・外国籍歓迎!新宿エリアのフルセットアップオフィス
新宿区新宿
58.44m²〔17.68坪〕
58.44m²〔17.68坪〕
449,782円

スタートアップ・外国籍歓迎!新宿エリアのフルセットアップオフィス
新宿区大京町
38.38m²〔11.61坪〕
38.38m²〔11.61坪〕
295,273円

新宿エリアで希少なフルセットアップオフィス
新宿区西新宿
347.71m²〔105.18坪〕
347.71m²〔105.18坪〕
相談

四谷エリア。敷金1ヵ月のセットアップオフィス。
新宿区四谷
151.34m²〔45.78坪〕
151.34m²〔45.78坪〕
相談

西新宿超高層ビルの大型居抜きオフィス 什器付き
新宿区西新宿
1884m²〔569.91坪〕
1884m²〔569.91坪〕
相談

敷金無し!新宿御苑前駅徒歩圏のセットアップオフィス
新宿区四谷
71.73m²〔21.70坪〕
71.73m²〔21.70坪〕
477,400円
物件情報
- 賃料
- 相談
- 敷金・保証金
- 相談
- 礼金
- 無し
- 償却等
- ※室内写真は別区画のイメージとなります
- 所在地
- 新宿区新宿
- 交通
- 丸ノ内線「新宿御苑前」1分
新宿線・副都心線「新宿三丁目」5分
JR・小田急線・京王線等「新宿」13分
- 構造規模
-
鉄筋鉄骨コンクリート造
地下2階 地上8階
- 契約面積
- 240.83m²(約72.85坪)
- 所在階
- 2階
入居可能時期
即日入居可
受付時間:平日9:00~18:00







