仲介手数料無料
新宿御苑前駅徒歩1分のセットアップオフィス
問い合わせ番号:48215
物件情報
- 賃料
1,789,760円
- 敷金・保証金
- 8ヵ月
- 礼金
- 無し
- 償却等
- ※内装写真準備中となります
- 所在地
- 新宿区新宿
- 交通
- 丸ノ内線「新宿御苑前」1分
新宿線・副都心線「新宿三丁目」8分
JR・京王線・小田急線等「新宿」14分
- 構造規模
-
鉄筋鉄骨コンクリート造
地下2階 地上6階
- 契約面積
- 211.32m²(約63.92坪)
- 所在階
- 4階
入居可能時期
2026年5月上旬
備考
東京メトロ丸ノ内線新宿御苑前駅徒歩1分、東京メトロ副都心線・丸ノ内線、都営新宿線新宿三丁目駅徒歩8分、
ターミナル駅新宿駅徒歩14分。1985年4月竣工、鉄骨鉄筋コンクリート造(地上6階・地下2階建の賃貸オフィス。
2021年に外観・エントランス大規模改修済み。個別空調、OAフロア対応、男女別トイレ、エレベーター1基、天井高3,000mm。
新宿通りから少し入った閑静な立地。コンビニ、郵便局・金融機関も徒歩圏で便利。
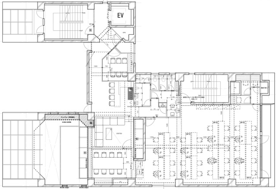
このエリアのセットアップオフィス、6名用・8名用の個室会議室とラウンジスペースが設置済み。執務室は35名前後でのご利用を想定。
新宿御苑前駅徒歩1分の内装付きオフィスです。
会員限定公開情報は
無料会員登録後に閲覧いただけます
間取り

同じエリアのおすすめ物件

四谷エリア。敷金1ヵ月のセットアップオフィス。
新宿区四谷
151.34m²〔45.78坪〕
151.34m²〔45.78坪〕
相談
-731x746.png)
四谷駅徒歩圏のセットアップオフィス
新宿区四谷
172.62m²〔52.22坪〕
172.62m²〔52.22坪〕
1,409,940円

西新宿エリアのセットアップオフィス
新宿区西新宿
166.88m²〔50.48坪〕
166.88m²〔50.48坪〕
相談

四谷三丁目駅徒歩3分の居抜きオフィス
新宿区荒木町
83.66m²〔25.31坪〕
83.66m²〔25.31坪〕
455,545円

西新宿エリアのセットアップオフィス
新宿区西新宿4
138.31m²〔41.84坪〕
138.31m²〔41.84坪〕
920,454円

敷金・原状回復工事無し!四谷エリアのフルセットアップオフィス
新宿区四谷
66.73m²〔20.19坪〕
66.73m²〔20.19坪〕
605,400円
物件情報
- 賃料
1,789,760円
- 敷金・保証金
- 8ヵ月
- 礼金
- 無し
- 償却等
- ※内装写真準備中となります
- 所在地
- 新宿区新宿
- 交通
- 丸ノ内線「新宿御苑前」1分
新宿線・副都心線「新宿三丁目」8分
JR・京王線・小田急線等「新宿」14分
- 構造規模
-
鉄筋鉄骨コンクリート造
地下2階 地上6階
- 契約面積
- 211.32m²(約63.92坪)
- 所在階
- 4階
入居可能時期
2026年5月上旬
受付時間:平日9:00~18:00


