仲介手数料無料
新宿エリアのセットアップオフィス
問い合わせ番号:47689
物件情報
- 賃料
1,144,000円
- 敷金・保証金
- 6か月
- 礼金
- 無し
- 所在地
- 新宿区新宿
- 交通
- 新宿線・丸の内線・副都心線「新宿三丁目」4分
大江戸線「東新宿」8分
JR・京王線・小田急線等「新宿」12分
- 構造規模
-
鉄筋コンクリート造
地上7階
- 契約面積
- 151.30m²(約45.77坪)
- 所在階
- 4階
入居可能時期
相談
備考
東京メトロ丸の内線、副都心線、都営新宿線三線が乗り入れる新宿三丁目駅4分、ターミナル駅新宿も徒歩圏の好立地。
東京医大通りに面する賃貸オフィス。周辺には伊勢丹をはじめとした大型商業施設や歌舞伎町があり、多くの飲食店が集まる活気のあるエリア。
このエリアのセットアップオフィスで什器付き。人気のセットアップオフィスシリーズ。
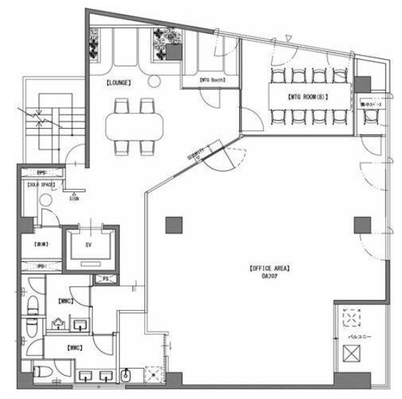
4名用・10名用の個室会議室と個室ブースが設置済み。執務室は20名前後でのご利用を想定。
新宿の内装付きオフィスです。
会員限定公開情報は
無料会員登録後に閲覧いただけます
間取り

同じエリアのおすすめ物件

飯田橋駅徒歩圏のフルセットアップオフィス
新宿区下宮比町
218.36m²〔66.05坪〕
218.36m²〔66.05坪〕
相談

飯田橋駅徒歩圏のフルセットアップオフィス
新宿区下宮比町
354.81m²〔107.33坪〕
354.81m²〔107.33坪〕
相談

敷金・原状回復工事無し!四ツ谷駅徒歩圏のフルセットアップオフィス
新宿区四谷
123.93m²〔37.49坪〕
123.93m²〔37.49坪〕
1,300,000円

新宿御苑前駅徒歩2分のメゾネットオフィス
新宿区新宿
124.10m²〔37.54坪〕
124.10m²〔37.54坪〕
499,999円

新宿御苑エリアの大型セットアップオフィス
新宿区大京町
424.08m²〔128.28坪〕
424.08m²〔128.28坪〕
3,591,840円

新宿御苑エリアの大型セットアップオフィス
新宿区大京町
424.08m²〔128.28坪〕
424.08m²〔128.28坪〕
3,591,840円
物件情報
- 賃料
1,144,000円
- 敷金・保証金
- 6か月
- 礼金
- 無し
- 所在地
- 新宿区新宿
- 交通
- 新宿線・丸の内線・副都心線「新宿三丁目」4分
大江戸線「東新宿」8分
JR・京王線・小田急線等「新宿」12分
- 構造規模
-
鉄筋コンクリート造
地上7階
- 契約面積
- 151.30m²(約45.77坪)
- 所在階
- 4階
入居可能時期
相談
受付時間:平日9:00~18:00


