四谷三丁目駅徒歩1分のコンパクト居抜きオフィス
問い合わせ番号:46312成約済み
物件情報
- 賃料
300,000円
- 敷金・保証金
- 8ヵ月
- 礼金
- 無し
- 償却等
- 更新料:1ヵ月
償却:2ヵ月
- 所在地
- 新宿区舟町
- 交通
- 丸ノ内線「四谷三丁目」1分
新宿線「曙橋」5分
JR・南北線「四ツ谷」13分
- 構造規模
-
鉄骨造
地上7階
- 契約面積
- 67.61m²(約20.45坪)
- 所在階
- 4階
入居可能時期
相談
備考
東京メトロ丸ノ内線四谷三丁目駅徒歩1分、 都営新宿線曙橋駅徒歩5分、 JR中央線、東京メトロ丸ノ内線、南北線、四ツ谷駅13分。
1992年10月竣工、 鉄骨造、地上7階建ての賃貸オフィス。個別空調方式 、機械警備あり 24時間利用可。
周辺にはファミリーマート 四谷三丁目駅前店、セブン-イレブン 新宿舟町店 、ミニストップ 四谷3丁目店が近くにあり便利。
みずほ銀行 四谷支店、四谷通二郵便局も徒歩圏。少し歩くと新宿御苑があり気分転換に最適。
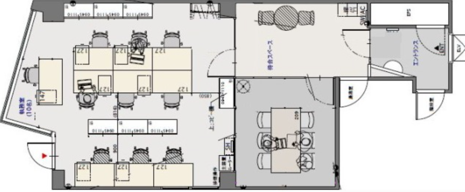
このエリアの居抜きオフィス、6名用の個室会議室と受付スペースが設置済み。執務室は10名前後でのご利用を想定。
四谷の内装付きオフィスです。
会員限定公開情報は
無料会員登録後に閲覧いただけます
03-6260-9380
受付時間:平日9:00~18:00
間取り

同じエリアのおすすめ物件

敷金無し!新宿御苑前駅徒歩圏のセットアップオフィス
新宿区四谷
71.73m²〔21.70坪〕
71.73m²〔21.70坪〕
477,400円

新宿エリアの超高層ビル内のフルセットアップオフィス
新宿区西新宿
190.21m²〔57.54坪〕
190.21m²〔57.54坪〕
相談

新宿エリアの超高層ビル内のフルセットアップオフィス
新宿区西新宿
119.80m²〔36.24坪〕
119.80m²〔36.24坪〕
相談

新宿エリアの超高層ビル内のフルセットアップオフィス
新宿区西新宿
149.75m²〔45.30坪〕
149.75m²〔45.30坪〕
相談

スタートアップ・外国籍歓迎!新宿エリアのフルセットアップオフィス
新宿区新宿
58.44m²〔17.68坪〕
58.44m²〔17.68坪〕
449,782円

スタートアップ・外国籍歓迎!新宿エリアのフルセットアップオフィス
新宿区大京町
38.38m²〔11.61坪〕
38.38m²〔11.61坪〕
295,273円
物件情報
- 賃料
300,000円
- 敷金・保証金
- 8ヵ月
- 礼金
- 無し
- 償却等
- 更新料:1ヵ月
償却:2ヵ月
- 所在地
- 新宿区舟町
- 交通
- 丸ノ内線「四谷三丁目」1分
新宿線「曙橋」5分
JR・南北線「四ツ谷」13分
- 構造規模
-
鉄骨造
地上7階
- 契約面積
- 67.61m²(約20.45坪)
- 所在階
- 4階
入居可能時期
相談
受付時間:平日9:00~18:00


