敷金・原状回復工事無し!新宿エリアのフルセットアップオフィス
問い合わせ番号:44861
物件情報
- 賃料
775,310円
- 敷金・保証金
-
無し
※保証会社に加入することにより敷金0相談
審査の内容によっては敷金が積み増しになる可能性があります。
- 礼金
- 無し
- 所在地
- 新宿区西新宿
- 交通
- 京王線「初台」7分
大江戸線「都庁前」9分
JR・新宿線・小田急線等「新宿」13分
- 構造規模
-
鉄骨造
地上9階
- 契約面積
- 82.687m²(約25.01坪)
- 所在階
- 複数フロア募集中
入居可能時期
即日入居可
備考
都営大江戸線都庁前駅徒歩9分、JR山手線新宿駅徒歩13分、京王線初台駅徒歩7分。参宮橋駅、南新宿駅、西新宿五丁目駅なども徒歩圏。
1990年11月竣工、鉄骨構造地上9階建て、石張りの重厚感あるファサードの十二社通りに面する賃貸オフィス。
個別空調、光ファイバー通信(MDFまで)、トイレ(共用部分に設置)オートロック、機械警備、24時間使用可能、ウォシュレット付きトイレ。
エレベーター不停止機能付き、1フロア1テナントの設計。周辺にはコンビニあり。近くの新宿パークタワー内に飲食・郵便局などがあり便利。
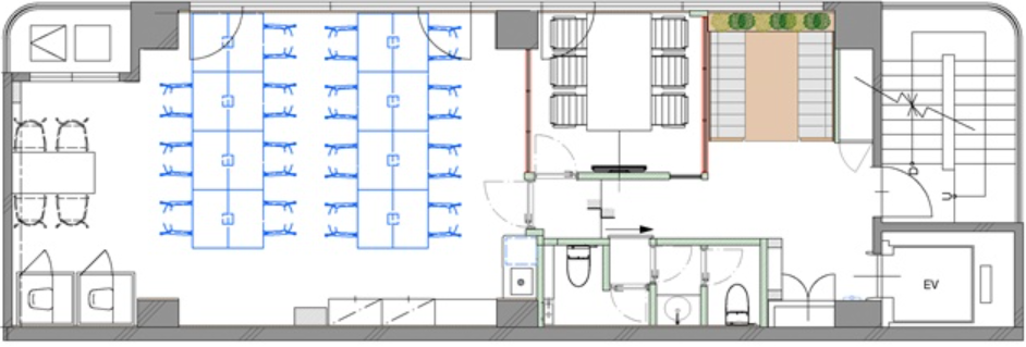
このエリアのフルセットアップオフィス、6名用の個室会議室とオープンmtgスペース、個室ブース2ヵ所が設置済み。執務室は15名前後でのご利用を想定。
徒歩3分の場所に新宿区運営のバスが15分間隔で出ています。新宿の内装付きオフィスです。
会員限定公開情報は
無料会員登録後に閲覧いただけます
間取り

同じエリアのおすすめ物件

スタートアップ・外国籍歓迎!新宿エリアのフルセットアップオフィス
58.44m²〔17.68坪〕
449,782円

スタートアップ・外国籍歓迎!新宿エリアのフルセットアップオフィス
38.38m²〔11.61坪〕
295,273円

新宿エリアで希少なフルセットアップオフィス
347.71m²〔105.18坪〕
相談

四谷エリア。敷金1ヵ月のセットアップオフィス。
151.34m²〔45.78坪〕
相談

西新宿超高層ビルの大型居抜きオフィス 什器付き
1884m²〔569.91坪〕
相談

敷金無し!新宿御苑前駅徒歩圏のセットアップオフィス
71.73m²〔21.70坪〕
477,400円
物件情報
- 賃料
775,310円
- 敷金・保証金
-
無し
※保証会社に加入することにより敷金0相談
審査の内容によっては敷金が積み増しになる可能性があります。
- 礼金
- 無し
- 所在地
- 新宿区西新宿
- 交通
- 京王線「初台」7分
大江戸線「都庁前」9分
JR・新宿線・小田急線等「新宿」13分
- 構造規模
-
鉄骨造
地上9階
- 契約面積
- 82.687m²(約25.01坪)
- 所在階
- 複数フロア募集中
入居可能時期
即日入居可
受付時間:平日9:00~18:00






