西新宿のハーフセットアップ 敷金無料相談 長期フリーレント相談
問い合わせ番号:42675
物件情報
- 賃料
- 相談
- 敷金・保証金
-
無し
※保証会社に加入することにより敷金0相談
審査の内容によっては敷金が積み増しになる可能性があります。
- 礼金
- 無し
- 所在地
- 新宿区西新宿
- 交通
- 丸ノ内線「西新宿」1分
大江戸線「都庁前」6分
JR・新宿線・京王線「新宿」9分
- 構造規模
-
鉄骨造
地上13階
- 契約面積
- 388.41m²(約117.49坪)
- 所在階
- 7階
入居可能時期
即日入居可
備考
丸の内線西新宿駅1分、ターミナル駅新宿も使える好立地。青梅街道に面するハイグレードオフィス。
このエリアはかつては田園地帯であったが、江戸時代には宿場町として発展しました。
明治時代以降は鉄道の開通に伴って都市化が進み、現在のようなビジネス街としての姿になっています。
特に西新宿は高層ビル群が立ち並び、多くの企業がオフィスを構えています。
また、近くには新宿中央公園もあり、自然を感じることができます。
日本を代表するビジネス街の一つとして、活気に満ちています。
平日はスーツ姿のビジネスマンで溢れ、週末は観光客やファミリーで賑わいます。
高層ビル群の中には一流ホテルやレストランも多く、夜景は特に美しいと評判です。
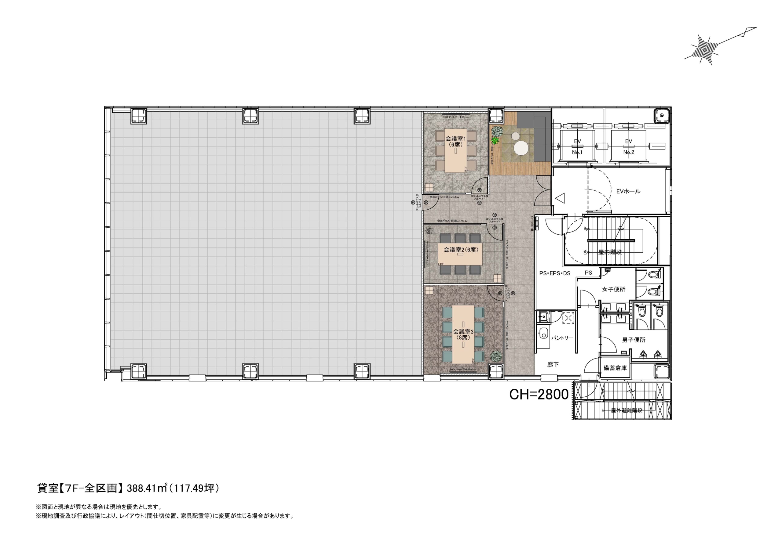
このエリアのセットアップオフィスです。個室会議室が3ヵ所設置済み。
執務室エリアは50-70名程でのご利用を想定。西新宿の内装付きオフィスです。
賃料、フリーレントなどご興味のおありの方は会員登録の上、詳細をご確認ください。
会員限定公開情報は
無料会員登録後に閲覧いただけます
間取り

同じエリアのおすすめ物件

四ツ谷駅徒歩圏のセットアップオフィス
172.70m²〔52.24坪〕
888,080円

新宿エリアのセットアップオフィス
246.92m²〔74.69坪〕
相談

新宿駅徒歩圏の共用部充実オフィス
90.03m²〔27.23坪〕
490,090円

新宿御苑前駅徒歩圏のセットアップオフィス
105.96m²〔32.05坪〕
769,200円

内装費用3,000万円貸主負担!事務所・音楽スタジオに最適、駐車場4台有りの1棟貸し物件
580.04m²〔175.46坪〕
3,181,818円

駐車場設備有!市ヶ谷駅徒歩圏のセットアップオフィス
184.74m²〔55.88坪〕
1,564,640円
物件情報
- 賃料
- 相談
- 敷金・保証金
-
無し
※保証会社に加入することにより敷金0相談
審査の内容によっては敷金が積み増しになる可能性があります。
- 礼金
- 無し
- 所在地
- 新宿区西新宿
- 交通
- 丸ノ内線「西新宿」1分
大江戸線「都庁前」6分
JR・新宿線・京王線「新宿」9分
- 構造規模
-
鉄骨造
地上13階
- 契約面積
- 388.41m²(約117.49坪)
- 所在階
- 7階
入居可能時期
即日入居可
受付時間:平日9:00~18:00








