仲介手数料無料
敷金・原状回復工事無し!新宿エリアのセットアップオフィス
問い合わせ番号:26793
物件情報
- 賃料
- 相談
- 敷金・保証金
-
無し
※保証会社に加入することにより敷金0相談
審査の内容によっては敷金が積み増しになる可能性があります。
- 礼金
- 無し
- 所在地
- 新宿区西新宿
- 交通
- 丸ノ内線「西新宿」5分
大江戸線「新宿西口」6分
JR・新宿線・小田急線等「新宿」10分
- 構造規模
-
鉄筋鉄骨コンクリート造
地下1階 地上5階
- 契約面積
- 190.30m²(約57.57坪)
- 所在階
- 2階
入居可能時期
2026/05/05
備考
東京メトロ丸ノ内線西新宿駅徒歩5分、都営大江戸線新宿西口駅徒歩約6分、 大ターミナル駅新宿駅も徒歩圏。
1993年11月竣工、鉄骨鉄筋コンクリート造、地上5階/地下1階建ての賃貸オフィス。
個別空調・OAフロア・機械警備・男女別トイレ、24時間使用可能、エレベーター1基設置。
周辺には小滝橋通りがあり、コンビニ、ドラッグストア、カフェ・飲食店が集まる便利な環境。
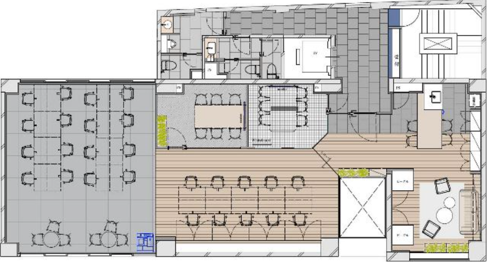
このエリアのセットアップオフィス、6名用×2の個室会議室とラウンジスペースが設置済み。
執務室は30名前後でのご利用を想定しています。新宿の内装付きオフィスです。
会員限定公開情報は
無料会員登録後に閲覧いただけます
間取り

同じエリアのおすすめ物件

敷金無し!新宿御苑前駅徒歩圏のセットアップオフィス
新宿区四谷
71.73m²〔21.70坪〕
71.73m²〔21.70坪〕
477,400円

新宿エリアの超高層ビル内のフルセットアップオフィス
新宿区西新宿
190.21m²〔57.54坪〕
190.21m²〔57.54坪〕
相談

新宿エリアの超高層ビル内のフルセットアップオフィス
新宿区西新宿
119.80m²〔36.24坪〕
119.80m²〔36.24坪〕
相談

新宿エリアの超高層ビル内のフルセットアップオフィス
新宿区西新宿
149.75m²〔45.30坪〕
149.75m²〔45.30坪〕
相談

スタートアップ・外国籍歓迎!新宿エリアのフルセットアップオフィス
新宿区新宿
58.44m²〔17.68坪〕
58.44m²〔17.68坪〕
449,782円

スタートアップ・外国籍歓迎!新宿エリアのフルセットアップオフィス
新宿区大京町
38.38m²〔11.61坪〕
38.38m²〔11.61坪〕
295,273円
物件情報
- 賃料
- 相談
- 敷金・保証金
-
無し
※保証会社に加入することにより敷金0相談
審査の内容によっては敷金が積み増しになる可能性があります。
- 礼金
- 無し
- 所在地
- 新宿区西新宿
- 交通
- 丸ノ内線「西新宿」5分
大江戸線「新宿西口」6分
JR・新宿線・小田急線等「新宿」10分
- 構造規模
-
鉄筋鉄骨コンクリート造
地下1階 地上5階
- 契約面積
- 190.30m²(約57.57坪)
- 所在階
- 2階
入居可能時期
2026/05/05
受付時間:平日9:00~18:00








