五反田駅徒歩圏のセットアップオフィス
問い合わせ番号:52998
物件情報
- 賃料
1,724,820円
- 敷金・保証金
- 6ヵ月
- 礼金
- 無し
- 所在地
- 品川区西五反田
- 交通
- JR・浅草線・池上線「五反田」7分
目黒線「不動前」9分
南北線・三田線「目黒」11分
- 構造規模
-
鉄筋鉄骨コンクリート造
地下1階 地上4階
- 契約面積
- 200.07m²(約60.52坪)
- 所在階
- 3階B
入居可能時期
即日入居可
備考
JR/都営浅草線五反田駅徒歩7分、JR・南北線目黒駅も徒歩圏の複数路線が使える好立地、
1990年11月竣工、鉄骨鉄筋コンクリート造地上4階/地下1階建の無柱空間の賃貸オフィス。
エレベーター1基、個別空調、OAフロア、トイレ男女別(共用部)機械警備、24時間利用可、
共用ラウンジ(1F・B1)会議室・テレカンブース、ファミレス席などワークスペース、屋上テラス、
このエリアはオフィスビル、飲食店、商業施設、住宅街が融合しており、ビジネスや生活の両面で便利なエリアとして知られています。
西口周辺には多くの飲食店や居酒屋が集まっており、ビジネスマンや地元住民に人気です。ラーメン店、和食、イタリアンなど多様なジャンルの飲食店が揃い、
リーズナブルな価格帯から高級店まで幅広い選択肢があります。
特に駅近くには小規模な居酒屋が多く、気軽に立ち寄れる雰囲気の店舗が多いことから、仕事帰りに訪れるサラリーマンが多いエリアです。
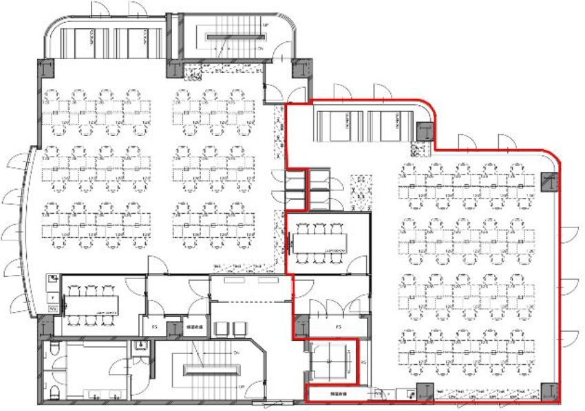
このエリアのセットアップオフィスで6名用の個室会議室とラウンジ、個室ブースが設置済み。
執務室は40名前後でのご利用を想定。五反田の内装付きオフィスです。
会員限定公開情報は
無料会員登録後に閲覧いただけます
間取り

同じエリアのおすすめ物件

原状回復工事無し!五反田エリアのセットアップオフィス
58.88m²〔17.81坪〕
520,000円

敷金無し相談可能!五反田エリアのセットアップオフィス
124.73m²〔37.73坪〕
1,056,440円

五反田エリアのセットアップオフィス
207.53m²〔62.78坪〕
1,569,091円

目黒駅徒歩圏の新築セットアップオフィス
98.39m²〔29.76坪〕
1,366,636円

敷金無し相談可能!五反田エリアのバルコニー付きフルセットアップオフィス
105.65m²〔31.96坪〕
1,000,000円

Wi-Fi完備!五反田駅徒歩圏のフルセットアップオフィス
85.91m²〔25.99坪〕
600,000円
物件情報
- 賃料
1,724,820円
- 敷金・保証金
- 6ヵ月
- 礼金
- 無し
- 所在地
- 品川区西五反田
- 交通
- JR・浅草線・池上線「五反田」7分
目黒線「不動前」9分
南北線・三田線「目黒」11分
- 構造規模
-
鉄筋鉄骨コンクリート造
地下1階 地上4階
- 契約面積
- 200.07m²(約60.52坪)
- 所在階
- 3階B
入居可能時期
即日入居可
受付時間:平日9:00~18:00









