恵比寿駅徒歩圏の居抜きオフィス

問い合わせ番号:53078

明治通りに位置し視認性抜群

仕上げイメージ(画像右側壁撤去します)

1階にはレストラン

開放感のあるエントランス

エレベーターは2基

物件情報

賃料

1,265,460

共益費
220,080円
敷金・保証金
相談
礼金
無し
所在地
渋谷区広尾
交通
JR・日比谷線「恵比寿」7分
構造規模
鉄骨造
地下1階 地上12階
契約面積
181.89m²(約55.02坪)
所在階
9階

入居可能時期

2026年8月上旬

備考

東京メトロ日比谷線・JR山手線・埼京線「恵比寿」駅 徒歩7分、東京メトロ日比谷線「広尾」駅 徒歩8分、
2003年3月竣工、鉄骨造地上12階建ワンフロア1テナントの賃貸オフィス。
エレベーター2基、個別空調、OAフロア(50mm)天井高2,600mm、セキュリティ:機械警備+管理人常駐。駐車場あり。
明治通りの桜並木通りに面するかっこいい居抜きオフィス。
ガラスファサードの外観、洗練されたエントランスなどひと際目に付く洗練されたデザイン。
周辺にはフレンチやイタリアンなどの恵比寿ならではのお洒落なお店も多く心地い環境。
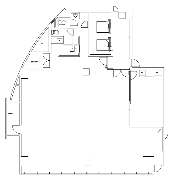
この三拍子そろったオフィスに居抜きという特典付き。6~8名用の個室会議室が設置済み。
執務室は20-35名前後でのご利用を想定。恵比寿の居抜きオフィスです。

会員限定公開情報
無料会員登録後に閲覧いただけます

間取り

物件情報

賃料

1,265,460

共益費
220,080円
敷金・保証金
相談
礼金
無し
所在地
渋谷区広尾
交通
JR・日比谷線「恵比寿」7分
構造規模
鉄骨造
地下1階 地上12階
契約面積
181.89m²(約55.02坪)
所在階
9階

入居可能時期

2026年8月上旬

03-6260-9380

受付時間:平日9:00~18:00

現在の検索結果

気になる物件のご質問、ご要望、内覧等は
お問い合わせフォーム または
お電話 でご連絡ください。

03-6260-9380

営業時間:平日9:00~18:00

×

条件で物件を探す

エリア

広さ

坪 ~

こだわり

キャンセル