千駄ヶ谷エリアのフルリノベオフィス

問い合わせ番号:52080

北参道駅徒歩圏のデザイナーズオフィス

物件情報

賃料

1,300,000

敷金・保証金
2ヵ月
礼金
1ヵ月
償却等
再契約料:1ヵ月
所在地
渋谷区千駄ヶ谷
交通
副都心線「北参道」4分
JR「原宿」7分
JR「千駄ヶ谷」11分
大江戸線「国立競技場前」12分
構造規模
鉄筋コンクリート造
地下1階 地上4階
契約面積
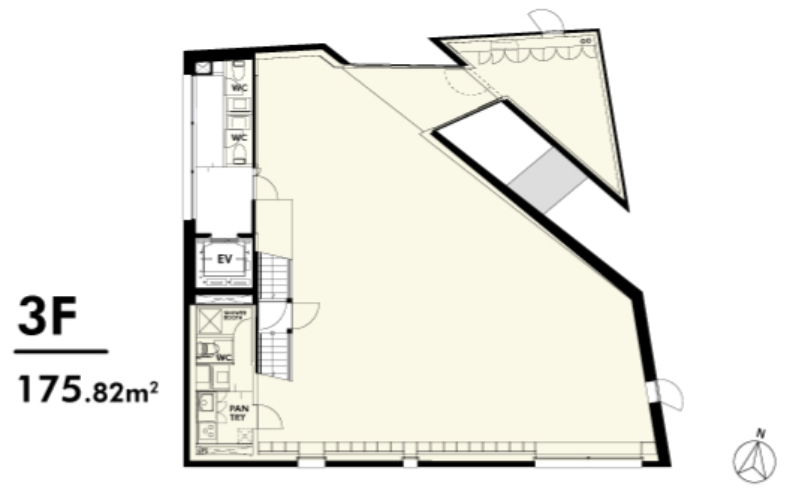
175.80m²(約53.18坪)
所在階
3階

入居可能時期

2026年5月上旬

会員限定公開情報
無料会員登録後に閲覧いただけます

間取り

物件情報

賃料

1,300,000

敷金・保証金
2ヵ月
礼金
1ヵ月
償却等
再契約料:1ヵ月
所在地
渋谷区千駄ヶ谷
交通
副都心線「北参道」4分
JR「原宿」7分
JR「千駄ヶ谷」11分
大江戸線「国立競技場前」12分
構造規模
鉄筋コンクリート造
地下1階 地上4階
契約面積
175.80m²(約53.18坪)
所在階
3階

入居可能時期

2026年5月上旬

03-6260-9380

受付時間:平日9:00~18:00

現在の検索結果

気になる物件のご質問、ご要望、内覧等は
お問い合わせフォーム または
お電話 でご連絡ください。

03-6260-9380

営業時間:平日9:00~18:00

×

条件で物件を探す

エリア

広さ

坪 ~

こだわり

キャンセル