仲介手数料無料
神宮前エリアの好立地オフィス
問い合わせ番号:50608
物件情報
- 賃料
- 相談
- 敷金・保証金
- 相談
- 礼金
- 無し
- 所在地
- 渋谷区神宮前
- 交通
- 千代田線・副都心線「明治神宮前」5分
JR「原宿」7分
JR・銀座線・半蔵門線等「渋谷」11分
- 構造規模
-
鉄筋鉄骨コンクリート造
地上8階
- 契約面積
- 164.43m²(約49.74坪)
- 所在階
- 7階
入居可能時期
2026/04/05
備考
JR山手線原宿駅徒歩7分、JR・東京メトロ・東急線、渋谷駅徒歩11分、東京メトロ副都心線・千代田線明治神宮前駅徒歩5分、
東京メトロ銀座線・千代田線・半蔵門線表参道駅徒歩11分、1991年8月竣工、
鉄骨鉄筋コンクリート造地上8階建ての明治通りに面する賃貸オフィス。
ワンフロア・ワンテナント、個別空調・OAフロア。
周辺にはMiyashita Park、GEMS Jingumae があり、数多くの商業施設が入居中。
コンビニ・飲食店、銀行・郵便局等の生活インフラも徒歩圏。
このエリアのコンパクトサイズオフィス、整形無柱の使い勝手のいい室内。
ご興味のある方はお問合せください。神宮前の賃貸オフィスです。
会員限定公開情報は
無料会員登録後に閲覧いただけます
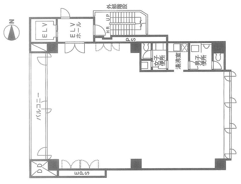
間取り

同じエリアのおすすめ物件

敷金無し!長期フリーレント、千駄ヶ谷エリアの築浅セットアップオフィス
渋谷区千駄ヶ谷
211.63m²〔64.02坪〕
211.63m²〔64.02坪〕
2,500,000円

敷金無し!長期フリーレント、千駄ヶ谷エリアの築浅セットアップオフィス
渋谷区千駄ヶ谷
211.63m²〔64.02坪〕
211.63m²〔64.02坪〕
2,250,000円

敷金無し!長期フリーレント、千駄ヶ谷エリアの築浅セットアップオフィス
渋谷区千駄ヶ谷
211.63m²〔64.02坪〕
211.63m²〔64.02坪〕
2,200,000円

恵比寿エリア。敷金無しの築浅フルセットアップオフィス。
渋谷区恵比寿
124.99m²〔37.81坪〕
124.99m²〔37.81坪〕
1,550,000円

神宮前エリアの希少居抜き物件
渋谷区神宮前
100.49m²〔30.40坪〕
100.49m²〔30.40坪〕
700,000円

恵比寿駅徒歩圏のルーフバルコニー付きSOHO物件
渋谷区恵比寿南
95.28m²〔28.82坪〕
95.28m²〔28.82坪〕
535,000円
物件情報
- 賃料
- 相談
- 敷金・保証金
- 相談
- 礼金
- 無し
- 所在地
- 渋谷区神宮前
- 交通
- 千代田線・副都心線「明治神宮前」5分
JR「原宿」7分
JR・銀座線・半蔵門線等「渋谷」11分
- 構造規模
-
鉄筋鉄骨コンクリート造
地上8階
- 契約面積
- 164.43m²(約49.74坪)
- 所在階
- 7階
入居可能時期
2026/04/05
受付時間:平日9:00~18:00





