仲介手数料無料
広尾エリアの大型居抜きオフィス
問い合わせ番号:49417
物件情報
- 賃料
- 相談
- 敷金・保証金
- 相談
- 礼金
- 無し
- 償却等
- 詳細レイアウトや写真等お気軽にお問い合わせ下さい
- 所在地
- 渋谷区恵比寿
- 交通
- 日比谷線「広尾」8分
JR「恵比寿」12分
- 構造規模
-
鉄筋鉄骨コンクリート造
地下1階 地上7階
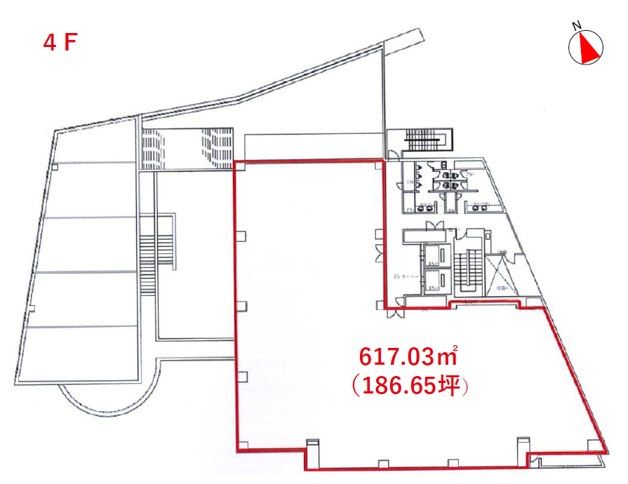
- 契約面積
- 617.03m²(約186.65坪)
- 所在階
- 4階
入居可能時期
相談
備考
東京メトロ日比谷線広尾駅徒歩8分、 JR山手線、東京メトロ日比谷線恵比寿駅徒歩12分、
1992年11月竣工、鉄骨鉄筋コンクリート、地上7階、地下1階建ての賃貸オフィス。
エレベーター2基、個別空調、OAフロア、光ファイバー対応、機械警備、駐車場(機械式・平面式)。
周辺には、高級マンションや大使館、インターナショナルスクール、広尾病院や慶応の幼稚舎が集まる落ち着いた環境。
飲食店やカフェ、コンビニ、スーパーなどが近くにあります。有栖川宮記念公園も近く気分転換もできる。
このエリア最大級の大型居抜きオフィス、ゆったりとした外構と植栽、御影石張りの上品な外観。
4名用×2・8名用・10名用の個室会議室とラウンジスペースが設置済み。執務室は最大110名前後でのご利用を想定。
広尾のハイグレードオフィスです。
会員限定公開情報は
無料会員登録後に閲覧いただけます
間取り

同じエリアのおすすめ物件

敷金・原状回復工事無し!渋谷エリアのフルセットアップオフィス
渋谷区渋谷
112.98m²〔34.18坪〕
112.98m²〔34.18坪〕
1,469,310円

敷金・原状回復工事無し!渋谷エリアのフルセットアップオフィス
渋谷区渋谷
112.98m²〔34.18坪〕
112.98m²〔34.18坪〕
1,469,310円

北参道駅徒歩圏のショールーム居抜き物件
渋谷区千駄ヶ谷
306.48m²〔92.71坪〕
306.48m²〔92.71坪〕
相談

恵比寿駅徒歩圏の居抜きオフィス
渋谷区東
159.01m²〔48.10坪〕
159.01m²〔48.10坪〕
相談

恵比寿エリアの居抜き要相談オフィス
渋谷区
189.12m²〔57.21坪〕
189.12m²〔57.21坪〕
1,300,227円

神宮前エリアのヴィンテージオフィス
渋谷区神宮前
81.30m²〔24.59坪〕
81.30m²〔24.59坪〕
540,000円
物件情報
- 賃料
- 相談
- 敷金・保証金
- 相談
- 礼金
- 無し
- 償却等
- 詳細レイアウトや写真等お気軽にお問い合わせ下さい
- 所在地
- 渋谷区恵比寿
- 交通
- 日比谷線「広尾」8分
JR「恵比寿」12分
- 構造規模
-
鉄筋鉄骨コンクリート造
地下1階 地上7階
- 契約面積
- 617.03m²(約186.65坪)
- 所在階
- 4階
入居可能時期
相談
受付時間:平日9:00~18:00
