バルコニー・駐車場付き!表参道駅徒歩圏の築浅物件
問い合わせ番号:48722
物件情報
- 賃料
1,200,000円
- 敷金・保証金
- 6ヵ月
- 償却等
- ・駐車場設備有
- 所在地
- 渋谷区神宮前
- 交通
- 銀座線・半蔵門線・千代田線等「表参道」7分
- 構造規模
-
鉄筋コンクリート造
地上3階
- 契約面積
- 133.64m²(約40.43坪)
- 所在階
- 1-3階
入居可能時期
相談
備考
東京メトロ 銀座線、千代田線、半蔵門線表参道駅徒歩7分、東京メトロ 銀座線外苑前駅徒歩8分、
都営大江戸線国立競技場駅も徒歩圏。2025年11月竣工、鉄筋コンクリート造地上3階建ての賃貸オフィス。
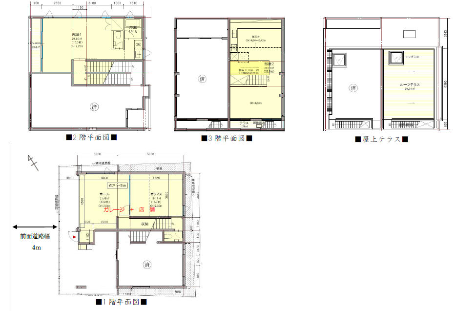
1階部分はガレージ + 店舗スペース(約39.6〜40㎡)として利用可能。趣味の空間、ショールーム、店舗、SOHOなど、用途の自由度が高い設計。
3階には床暖房設置、天井高は約 3.8 m と開放感のある空間。屋上テラス(ルーフテラス)付き。バルコニー・テラスがあり、屋外スペースとしても活用可能。
周辺はトレンドとファッションの最前線である「表参道・青山・原宿」に近く、カフェ、セレクトショップ、アパレル、デザイン系ショップ、美容室などが多いエリア。
路面店やショールームに適した立地で、人通りも比較的多く、視認性・集客性が高め。物販・サロン・ギャラリーなどに向く環境。
このエリアの築浅デザイナーズオフィスです。
会員限定公開情報は
無料会員登録後に閲覧いただけます
間取り

同じエリアのおすすめ物件

駐車場設備有!渋谷駅徒歩圏のメゾネットSOHO物件
渋谷区松濤
122.00m²〔36.91坪〕
122.00m²〔36.91坪〕
630,000円

恵比寿の原状回復なし、敷金0相談のフルセットアップオフィス
渋谷区恵比寿
65.58m²〔19.84坪〕
65.58m²〔19.84坪〕
805,600円

恵比寿のフルセットアップオフィス
渋谷区東
84.26m²〔25.49坪〕
84.26m²〔25.49坪〕
750,000円

恵比寿エリアのセットアップオフィス
渋谷区恵比寿南
75.27m²〔22.77坪〕
75.27m²〔22.77坪〕
751,080円

表参道駅徒歩3分のハイグレードフルセットアップオフィス
渋谷区神宮前
28.44m²〔8.60坪〕
28.44m²〔8.60坪〕
400,000円

敷金・原状回復工事無し!渋谷駅のセットアップオフィス
渋谷区渋谷
75.61m²〔22.87坪〕
75.61m²〔22.87坪〕
900,000円
物件情報
- 賃料
1,200,000円
- 敷金・保証金
- 6ヵ月
- 償却等
- ・駐車場設備有
- 所在地
- 渋谷区神宮前
- 交通
- 銀座線・半蔵門線・千代田線等「表参道」7分
- 構造規模
-
鉄筋コンクリート造
地上3階
- 契約面積
- 133.64m²(約40.43坪)
- 所在階
- 1-3階
入居可能時期
相談
受付時間:平日9:00~18:00



