神宮前エリアのコンパクトオフィス

問い合わせ番号:47276

神宮前エリアのコンパクトオフィス

エントランススペース

周辺は住宅とオフィスが混在する閑静な立地です

物件情報

賃料

750,000

敷金・保証金
6ヵ月
礼金
1ヵ月
償却等
更新料:1ヵ月
所在地
渋谷区神宮前
交通
銀座線「外苑前」10分
副都心線「北参道」10分
大江戸線「国立競技場」10分
JR「千駄ヶ谷」12分
構造規模
鉄筋コンクリート造
地上4階
契約面積
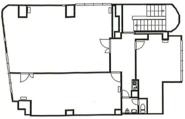
123.96m²(約37.50坪)
所在階
2階

入居可能時期

2025/12/01

備考

東京メトロ副都心線北参道駅徒歩10分、東京メトロ千代田線・副都心線明治神宮前〈原宿〉駅徒歩10分、
東京メトロ銀座線外苑前駅徒歩10分、JR中央・総武線千駄ヶ谷駅徒歩12分、副都心線北参道家駅徒歩10分。
都営大江戸線国立競技場駅徒歩10分。 1986年2月竣工鉄筋コンクリート造地上4階建て、
神宮前2丁目の商店街通り沿いの賃貸オフィス。周辺にはコンビニ、飲食店があり便利な立地です。
このエリアのコンパクトサイズデザイナーズオフィス、ご興味のある方はお問合せください。

会員限定公開情報
無料会員登録後に閲覧いただけます

間取り

物件情報

賃料

750,000

敷金・保証金
6ヵ月
礼金
1ヵ月
償却等
更新料:1ヵ月
所在地
渋谷区神宮前
交通
銀座線「外苑前」10分
副都心線「北参道」10分
大江戸線「国立競技場」10分
JR「千駄ヶ谷」12分
構造規模
鉄筋コンクリート造
地上4階
契約面積
123.96m²(約37.50坪)
所在階
2階

入居可能時期

2025/12/01

03-6260-9380

受付時間:平日9:00~18:00

現在の検索結果

気になる物件のご質問、ご要望、内覧等は
お問い合わせフォーム または
お電話 でご連絡ください。

03-6260-9380

営業時間:平日9:00~18:00

×

条件で物件を探す

エリア

広さ

坪 ~

こだわり

キャンセル