仲介手数料無料
渋谷エリアで希少な大型居抜きオフィス
問い合わせ番号:22828
物件情報
- 賃料
- 相談
- 敷金・保証金
- 相談
- 礼金
- 無し
- 償却等
- ※詳細に付いてお気軽にお問合せ下さい
- 所在地
- 渋谷区
- 交通
- JR・銀座・半蔵門・東急東横・田園都市線等「渋谷」
- 構造規模
-
鉄筋鉄骨コンクリート造
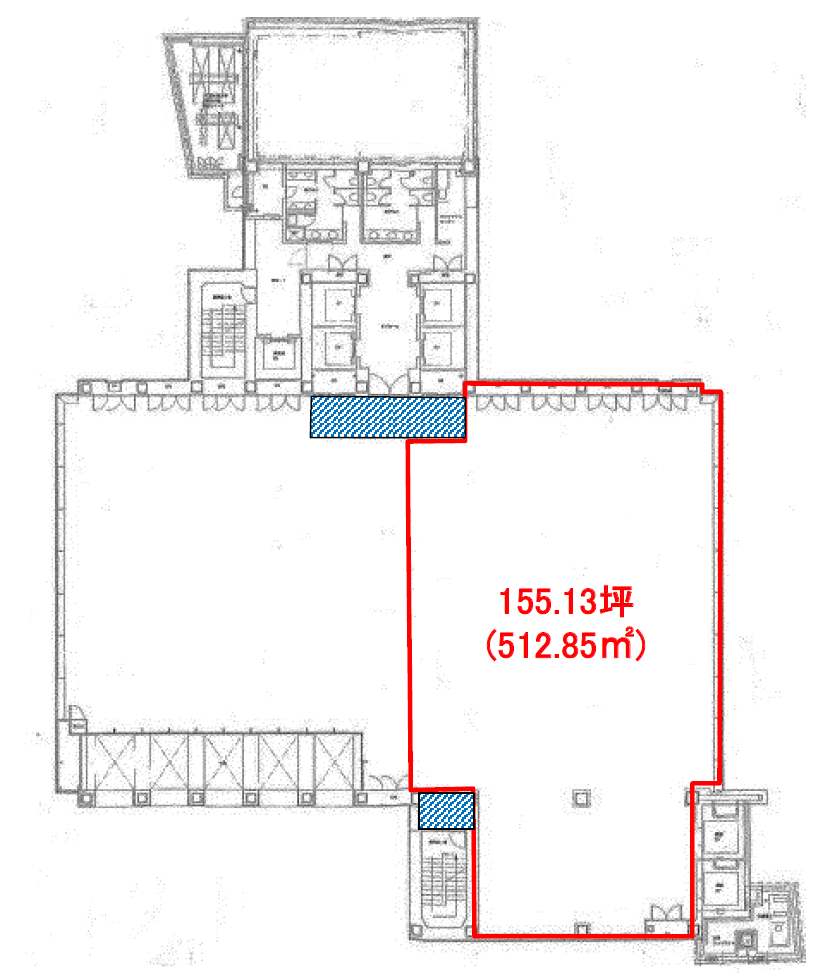
- 契約面積
- 500m²(約151.25坪)
入居可能時期
相談
備考
京王井の頭線「神泉駅」徒歩3分、JR・東京メトロ・東急各線「渋谷駅」徒歩7分。鉄骨造、2002年竣工、鉄骨造、地上15階・地下1階建のハイスペックな賃貸オフィスビルです。
天井高:2,800mm、機械警備と有人管理の併用、非接触型ICカードキー採用、駐車場:機械式駐車場(64台分)あり。
周辺には多彩な商業施設や飲食店が立ち並んでいます。徒歩圏内には「渋谷マークシティ」や「渋谷109」などの大型商業施設があり、
ビジネスだけでなくショッピングや食事にも便利な環境です。ビルの1階にはスーパーがあり何かと便利。
渋谷エリアでは希少な大型居抜き相談オフィス、ご興味のおありの方は会員登録の上、詳細をご確認ください。
70名~80名の企業向け内装付きオフィスです。
会員限定公開情報は
無料会員登録後に閲覧いただけます
間取り

同じエリアのおすすめ物件

敷金・原状回復工事無し!渋谷駅徒歩圏のフルセットアップオフィス
渋谷区渋谷
62.35m²〔18.86坪〕
62.35m²〔18.86坪〕
792,120円

恵比寿駅徒歩圏のセットアップオフィス
渋谷区広尾
225.96m²〔68.35坪〕
225.96m²〔68.35坪〕
1,708,750円

代々木上原駅徒歩圏のバルコニー付きオフィス
渋谷区大山町
161.15m²〔48.75坪〕
161.15m²〔48.75坪〕
828,580円

敷金・原状回復工事不要!渋谷エリアのセットアップオフィス【長期フリーレント可】
渋谷区東
178.71m²〔54.06坪〕
178.71m²〔54.06坪〕
相談

敷金・原状回復工事不要!渋谷エリアのフルセットアップオフィス【長期フリーレント可】
渋谷区東
193.81m²〔58.63坪〕
193.81m²〔58.63坪〕
相談

敷金・原状回復工事無し!恵比寿駅徒歩圏のセットアップオフィス
渋谷区恵比寿
181.50m²〔54.90坪〕
181.50m²〔54.90坪〕
相談
物件情報
- 賃料
- 相談
- 敷金・保証金
- 相談
- 礼金
- 無し
- 償却等
- ※詳細に付いてお気軽にお問合せ下さい
- 所在地
- 渋谷区
- 交通
- JR・銀座・半蔵門・東急東横・田園都市線等「渋谷」
- 構造規模
-
鉄筋鉄骨コンクリート造
- 契約面積
- 500m²(約151.25坪)
入居可能時期
相談
受付時間:平日9:00~18:00





