共用部充実!池尻大橋駅徒歩圏のテラス付きオフィス
問い合わせ番号:53222
物件情報
- 賃料
950,000円
- 敷金・保証金
- 3ヵ月
- 礼金
- 無し
- 償却等
- 償却:1ヵ月
- 所在地
- 世田谷区池尻
- 交通
- 田園都市線「池尻大橋」7分
- 構造規模
-
鉄筋コンクリート造
地下1階 地上4階
- 契約面積
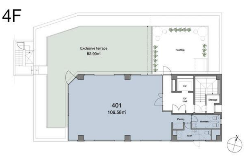
- 106.58m²(約32.24坪)
- 所在階
- 4階401
入居可能時期
2026年5月上旬
備考
東急田園都市線池尻大橋駅徒歩7分、2026年5月竣工、鉄筋コンクリート造地下1階地上1階の賃貸オフィス。
小規模オフィス+ショップ複合、デザイン系・スタートアップ向き、池尻・三宿・中目黒のカルチャーエリア。
周辺にはカフェ、ベーカリー、レストラン、居酒屋などが集まる楽しいエリア。
スーパーのオオゼキ、成城石井も徒歩圏、セブンイレブン、ファミリーマート、郵便局、ドラッグストアが利用でいます。
このエリアのシェアオフィス、ラウンジ、ルーフトップ、会議室、フォンブースが設置済み。
池尻大橋のサービスオフィスです。
会員限定公開情報は
無料会員登録後に閲覧いただけます
間取り

同じエリアのおすすめ物件

駒沢大学駅徒歩圏の戸建て物件
世田谷区深沢
112.08m²〔33.90坪〕
112.08m²〔33.90坪〕
495,000円

共用部充実!池尻大橋駅徒歩圏のシェアオフィス
世田谷区池尻
75.83m²〔22.94坪〕
75.83m²〔22.94坪〕
680,000円

世田谷区若林エリアのガレージ付きSOHO物件
世田谷区若林
95.34m²〔28.84坪〕
95.34m²〔28.84坪〕
400,000円

世田谷エリアの駐車場付きSOHO物件
世田谷区瀬田
94.84m²〔28.69坪〕
94.84m²〔28.69坪〕
440,000円

業種相談可能!自由が丘駅徒歩5分の好立地物件
世田谷区奥沢
100.64m²〔30.44坪〕
100.64m²〔30.44坪〕
750,000円

駐車場有!フリーレント・内装費用貸主負担可能な1階物件
161.23m²〔48.77坪〕
1,500,000円
物件情報
- 賃料
950,000円
- 敷金・保証金
- 3ヵ月
- 礼金
- 無し
- 償却等
- 償却:1ヵ月
- 所在地
- 世田谷区池尻
- 交通
- 田園都市線「池尻大橋」7分
- 構造規模
-
鉄筋コンクリート造
地下1階 地上4階
- 契約面積
- 106.58m²(約32.24坪)
- 所在階
- 4階401
入居可能時期
2026年5月上旬
受付時間:平日9:00~18:00





