本郷エリアのセットアップオフィス
問い合わせ番号:53948
物件情報
- 賃料
2,192,320円
- 敷金・保証金
- 相談
- 償却等
- 再契約料 賃料の1か月分
- 所在地
- 文京区本郷
- 交通
- 南北線 「後楽園」3分
三田線 「水道橋」4分
大江戸線 「春日駅」4分
丸ノ内線 「後楽園」6分
JR「水道橋」7分
- 構造規模
-
鉄筋鉄骨コンクリート造
地下1階 地上7階
- 契約面積
- 278.76m²(約84.32坪)
- 所在階
- 6階
入居可能時期
2026/09/23
備考
東京メトロ南北線 東京メトロ南北線 後楽園駅まで徒歩3分、都営三田線 都営三田線 水道橋駅まで徒歩4分、
都営大江戸線 都営大江戸線 春日駅まで徒歩4分、東京メトロ丸ノ内線 東京メトロ丸ノ内線 後楽園駅まで徒歩6分、
1985年5月竣工、鉄骨鉄筋コンクリート造、地下1階付7階建の白山通りに面する賃貸オフィス。
EV1基、天井高3,000mm㎜、OAフロア(H=40mm)、個別空調トイレ専用男女別洋式、機械警備、EV不停止機能付。
周辺には東京ドームシティを中心とした賑わいと、文教地区らしい落ち着きが共存しています。
水道橋駅・後楽園駅周辺には飲食店、居酒屋、カフェが多数あります。コンビニ・ドラッグストアも徒歩圏に点在。
銀行・ATM、郵便局など金融機関も充実。東京ドームを一望する事が出来る専用屋上テラス付きのセットアップオフィス。
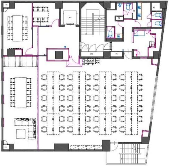
受付、6名用と8名用10名用の会議室が設置済み。執務室エリアは50名程を想定。本郷の内装付きオフィスです。
会員限定公開情報は
無料会員登録後に閲覧いただけます
間取り

同じエリアのおすすめ物件

本郷の敷金0相談、原状回復免除のフルセットアップオフィス
98.66m²〔29.84坪〕
676,200円

本郷の敷金0相談、原状回復免除のフルセットアップオフィス
98.66m²〔29.84坪〕
663,080円

本郷の敷金0相談、原状回復免除のフルセットアップオフィス
48.46m²〔14.66坪〕
424,850円

共用部充実!青海エリアのセットアップオフィス
324.34m²〔98.11坪〕
1,700,000円

共用部充実!青海エリアのデザイナーズオフィス
128.24m²〔38.79坪〕
603,000円

共用部充実!青海エリアのデザイナーズオフィス
236.42m²〔71.52坪〕
1,050,000円
物件情報
- 賃料
2,192,320円
- 敷金・保証金
- 相談
- 償却等
- 再契約料 賃料の1か月分
- 所在地
- 文京区本郷
- 交通
- 南北線 「後楽園」3分
三田線 「水道橋」4分
大江戸線 「春日駅」4分
丸ノ内線 「後楽園」6分
JR「水道橋」7分
- 構造規模
-
鉄筋鉄骨コンクリート造
地下1階 地上7階
- 契約面積
- 278.76m²(約84.32坪)
- 所在階
- 6階
入居可能時期
2026/09/23
受付時間:平日9:00~18:00







