共用部充実!青海エリアのデザイナーズオフィス
問い合わせ番号:53499
物件情報
- 賃料
330,000円
- 共益費
- 62,000円
- 敷金・保証金
- 相談
- 礼金
- 無し
- 償却等
- 再契約料:1ヵ月
・駐車場、駐輪場設備有
- 所在地
- 江東区青海
- 交通
- ゆりかもめ「テレコムセンター」5分
JR「東京テレポート」16分
- 構造規模
-
鉄筋コンクリート造
地下1階 地上13階
- 契約面積
- 67.72m²(約20.49坪)
- 所在階
- 12階1212
入居可能時期
即日入居可
備考
ゆりかもめ「東京国際クルーズターミナル駅」徒歩5分 、ゆりかもめ「テレコムセンター駅」徒歩5分 、りんかい線「東京テレポート駅」徒歩16分(バス利用可)。
2010年1月竣工、鉄筋コンクリート造、地上13階・地下1階建ての賃貸オフィス。
基準階275坪、天井高2,650mm、個別空調 、OAフロア、トイレ男女別、 エレベーター5基、 24時間利用可、
共用設備、ラウンジ/コワーキングスペース、会議室、フロント・コンシェルジュサービス、屋上テラス/バーラウンジ、フィットネスジム・シャワー、
カフェ・レストラン、駐車場(100台超規模) デザイナーズ×ホテルライクな複合オフィス、住居兼オフィス(SOHO利用)可能区画あり。
周辺は東京湾を望むウォーターフロントで開放感・眺望良、お台場エリア(商業施設・エンタメ施設)が近接、
公園(青海北ふ頭公園・プロムナード)至近で緑・海の環境が豊富、ンビニ・銀行・医療施設なども徒歩圏。
このエリアのデザイナーズオフィス、ご興味のある方はお問合せください。
ハーフセットアップオフィスや什器が不足しているオフィスでも、家具・什器をサブスク・リースで導入することで、初期費用を抑えながら什器付きオフィスとして利用可能です。増員や働き方の変化にも柔軟に対応でき、購入・廃棄コストの削減にもつながります。
会員限定公開情報は
無料会員登録後に閲覧いただけます
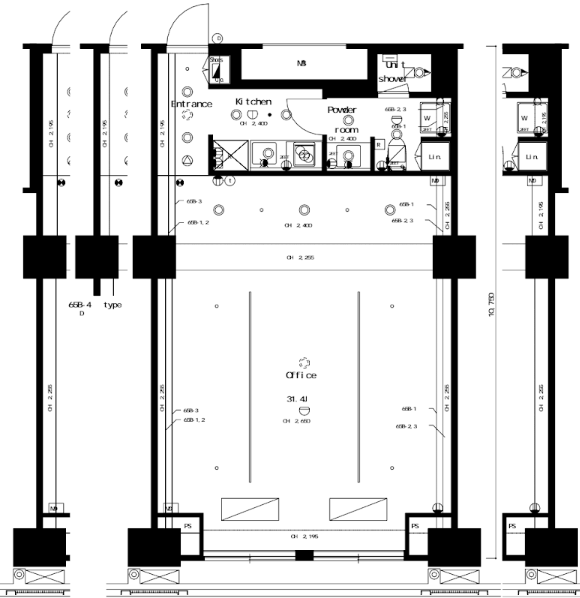
間取り

同じエリアのおすすめ物件

敷金・原状回復工事無し!大塚エリアのフルセットアップオフィス
124.47m²〔37.65坪〕
相談

敷金・原状回復工事無し!大塚エリアのフルセットアップオフィス
124.47m²〔37.65坪〕
相談

敷金・原状回復工事無し!大塚エリアのフルセットアップオフィス
109.49m²〔33.12坪〕
相談

茗荷谷の格安大型居抜きオフィス(会員限定)
355m²〔107.39坪〕
1,454,085円

こんなオフィスで働きたい 本郷三丁目のフルセットアップオフィス
160.51m²〔48.55坪〕
1,213,750円

本郷三丁目駅1分のフルセットアップオフィス テレカンブース2つ付 コストを抑え移転が可能
211.92m²〔64.11坪〕
1,410,200円
物件情報
- 賃料
330,000円
- 共益費
- 62,000円
- 敷金・保証金
- 相談
- 礼金
- 無し
- 償却等
- 再契約料:1ヵ月
・駐車場、駐輪場設備有
- 所在地
- 江東区青海
- 交通
- ゆりかもめ「テレコムセンター」5分
JR「東京テレポート」16分
- 構造規模
-
鉄筋コンクリート造
地下1階 地上13階
- 契約面積
- 67.72m²(約20.49坪)
- 所在階
- 12階1212
入居可能時期
即日入居可
受付時間:平日9:00~18:00














