仲介手数料無料
御徒町のハーフセットアップオフィス
問い合わせ番号:48684
物件情報
- 賃料
1,207,450円
- 共益費
- 190,650円
- 敷金・保証金
- 10カ月
- 礼金
- なし
- 所在地
- 台東区台東
- 交通
- 日比谷線「仲御徒町」2分
JR「御徒町」5分
大江戸線「上野御徒町」5分
銀座線「末広町」7分
JR「秋葉原」9分
- 構造規模
-
鉄骨造
地下1階 地上11階
- 契約面積
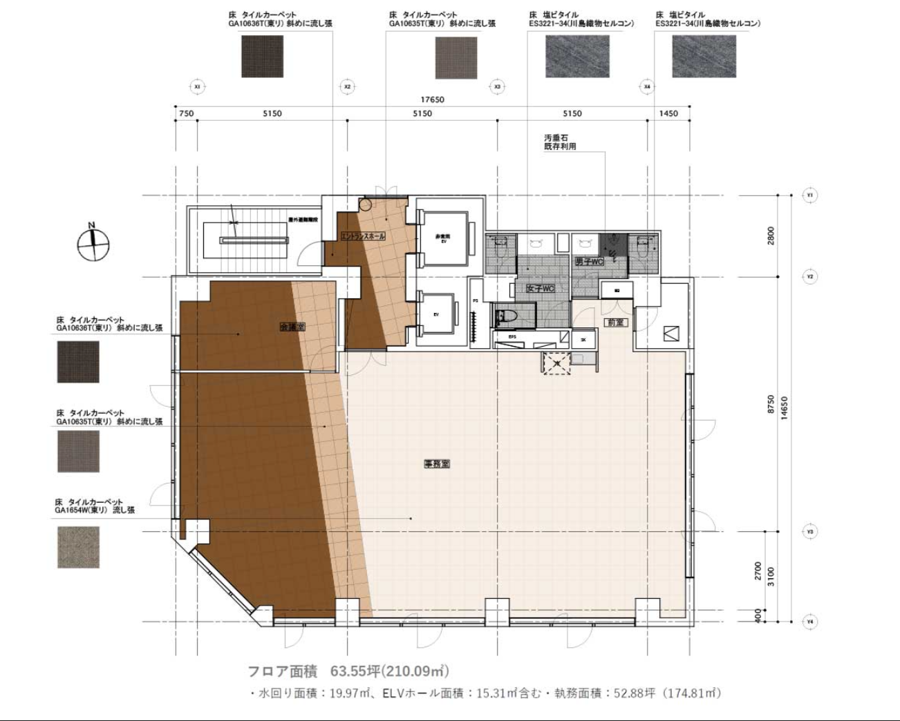
- 209.08m²(約63.25坪)
- 所在階
- 4階
入居可能時期
2026/05/01
備考
東京メトロ日比谷線仲御徒町駅徒歩約2分 JR山手線ほか御徒町駅徒歩5分、都営大江戸線上野御徒町駅徒歩5分、
東京メトロ銀座線末広町駅徒歩7分、 ターミナル駅秋葉原も徒歩圏で複数路線が利用可能。
2009年2月竣工、鉄骨造・一部鉄筋コンクリート造、地上11階/地下1階建ての昭和通りに面する賃貸オフィス。
OAフロア、個別空調、男女別トイレ、機械警備、24時間使用可能。
周辺にはセブン-イレブン 台東2丁目店や台東三郵便局、アメ横も徒歩圏で、下町ならではの飲食店や問屋などがあり平日休日問わず活気のあるエリア。
このエリアの人気のセットアップオフィス。カッコいいデザイナーズ仕様に大幅リノベされた内装をそのまま使うことができる。
コストを抑え移転されたい方にお勧めご興味のおありの方はお問合せください。
御徒町の内装付きオフィスです。
会員限定公開情報は
無料会員登録後に閲覧いただけます
間取り

間取り

同じエリアのおすすめ物件

本郷エリアのセットアップオフィス
文京区本郷
278.76m²〔84.32坪〕
278.76m²〔84.32坪〕
2,192,320円

本郷の敷金0相談、原状回復免除のフルセットアップオフィス
文京区本郷
98.66m²〔29.84坪〕
98.66m²〔29.84坪〕
676,200円

本郷の敷金0相談、原状回復免除のフルセットアップオフィス
文京区本郷
98.66m²〔29.84坪〕
98.66m²〔29.84坪〕
663,080円

本郷の敷金0相談、原状回復免除のフルセットアップオフィス
文京区本郷
48.46m²〔14.66坪〕
48.46m²〔14.66坪〕
424,850円

共用部充実!青海エリアのセットアップオフィス
江東区青海
324.34m²〔98.11坪〕
324.34m²〔98.11坪〕
1,700,000円

共用部充実!青海エリアのデザイナーズオフィス
江東区青海
128.24m²〔38.79坪〕
128.24m²〔38.79坪〕
603,000円
物件情報
- 賃料
1,207,450円
- 共益費
- 190,650円
- 敷金・保証金
- 10カ月
- 礼金
- なし
- 所在地
- 台東区台東
- 交通
- 日比谷線「仲御徒町」2分
JR「御徒町」5分
大江戸線「上野御徒町」5分
銀座線「末広町」7分
JR「秋葉原」9分
- 構造規模
-
鉄骨造
地下1階 地上11階
- 契約面積
- 209.08m²(約63.25坪)
- 所在階
- 4階
入居可能時期
2026/05/01
受付時間:平日9:00~18:00











