亀戸の居抜きオフィス
問い合わせ番号:47886
物件情報
- 賃料
- 相談
- 敷金・保証金
- 相談
- 所在地
- 江東区亀戸
- 交通
- JR 総武線「亀戸駅」5分
東武亀戸線「亀戸駅」4分
- 構造規模
-
鉄骨造
地上8階
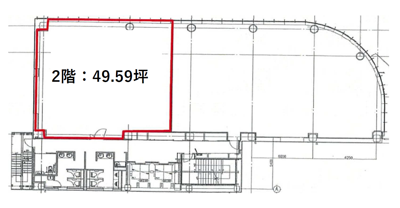
- 契約面積
- 163.93m²(約49.59坪)
- 所在階
- 2階
備考
JR 総武線「亀戸駅」徒歩5分、東武亀戸線「亀戸駅」徒歩4分。
2010年9月竣工、鉄骨造地上8階/地下1階建ての賃貸オフィス。
天井高:2,700mm、OAフロア、個別空調、24時間使用可、機械警備、駐車場あり。
周辺には飲食店、コンビニ、金融機関などの生活・ビジネス利便施設が充実しています。
昼食・カフェ・銀行用事などワンストップで揃いやすいという声も。
このエリアの居抜きオフィス、ご興味のある方はお問合せください。
亀戸の内装付きオフィスです。
会員限定公開情報は
無料会員登録後に閲覧いただけます
間取り

間取り

物件情報
- 賃料
- 相談
- 敷金・保証金
- 相談
- 所在地
- 江東区亀戸
- 交通
- JR 総武線「亀戸駅」5分
東武亀戸線「亀戸駅」4分
- 構造規模
-
鉄骨造
地上8階
- 契約面積
- 163.93m²(約49.59坪)
- 所在階
- 2階
受付時間:平日9:00~18:00










