溜池山王駅徒歩1分のセットアップオフィス

問い合わせ番号:53849

溜池山王のセットアップオフィス

個室会議室が設置済み

物件情報

賃料

860,400

敷金・保証金
6か月
礼金
無し
所在地
港区赤坂
交通
銀座線・南北線「溜池山王」1分
千代田線「赤坂」5分
丸ノ内線「国会議事堂前」7分
構造規模
鉄筋鉄骨コンクリート造
地下1階 地上8階
契約面積
94.83m²(約28.69坪)
所在階
2階

入居可能時期

相談

備考

東京メトロ銀座線・南北線溜池山王駅 徒歩1分、東京メトロ千代田線赤坂駅 徒歩5分、東京メトロ丸ノ内線・千代田線国会議事堂前駅 徒歩7分、
2009年11月竣工、鉄骨鉄筋コンクリート造、地上8階/地下1階の1フロア1テナントの賃貸オフィス。
エレベーター1基、個別空調、OAフロア、機械警備、光ファイバー対応、24時間利用可能、男女別トイレ。
周辺には飲食店が多く特に赤坂方面は商業施設のメッカで数多くの店舗を利用できる。
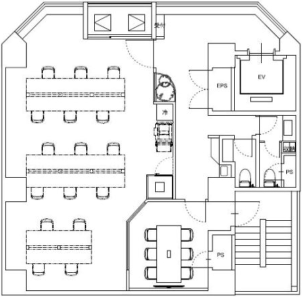
このエリアのセットアップオフィス、6名用の個室会議室が設置済み。執務室は15名前後でのご利用を想定。
溜池山王駅直結の内装付きオフィスです。

会員限定公開情報
無料会員登録後に閲覧いただけます

間取り

物件情報

賃料

860,400

敷金・保証金
6か月
礼金
無し
所在地
港区赤坂
交通
銀座線・南北線「溜池山王」1分
千代田線「赤坂」5分
丸ノ内線「国会議事堂前」7分
構造規模
鉄筋鉄骨コンクリート造
地下1階 地上8階
契約面積
94.83m²(約28.69坪)
所在階
2階

入居可能時期

相談

03-6260-9380

受付時間:平日9:00~18:00

現在の検索結果

気になる物件のご質問、ご要望、内覧等は
お問い合わせフォーム または
お電話 でご連絡ください。

03-6260-9380

営業時間:平日9:00~18:00

×

条件で物件を探す

エリア

広さ

坪 ~

こだわり

キャンセル