浜松町駅徒歩圏のセットアップオフィス
問い合わせ番号:53209
物件情報
- 賃料
505,180円
- 敷金・保証金
- 8ヶ月
- 礼金
- 無し
- 償却等
- 更新料:1ヵ月
※室内写真は別区画のイメージです
- 所在地
- 港区芝公園
- 交通
- 三田線「御成門」2分
大江戸線・浅草線「大門」6分
JR・東京モノレール「浜松町」10分
- 構造規模
-
鉄筋コンクリート造
地下1階 地上8階
- 契約面積
- 64.23m²(約19.43坪)
- 所在階
- 5階
入居可能時期
2026年8月上旬
備考
三田線御成門駅2分、大門や浜松町も徒歩圏のアクセスのいい立地。
周辺には芝公園、増上寺があり緑が映える心地いい環境。
港区役所も近いのも便利。
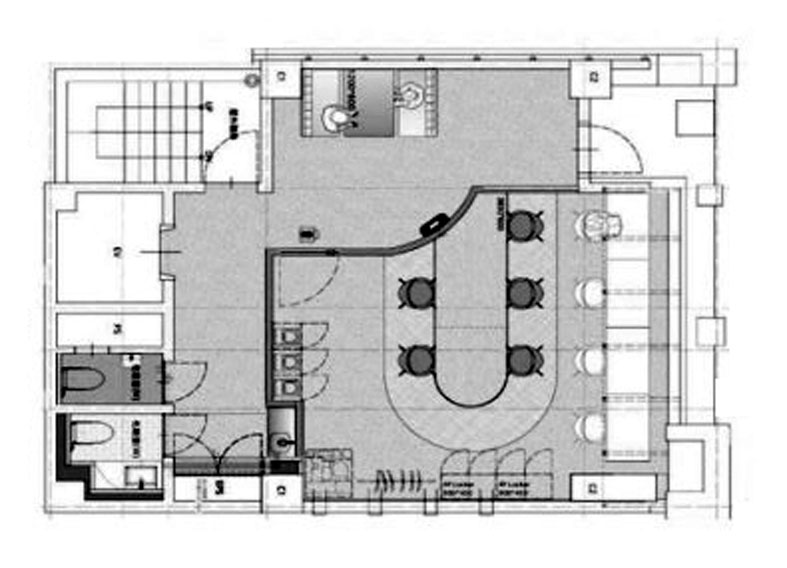
このエリアのセットアップオフィス。オープンmtgスペースが設置済みです。
執務室は9名前後でのご利用を想定しています。
芝公園の内装付きオフィスです。
会員限定公開情報は
無料会員登録後に閲覧いただけます
間取り

同じエリアのおすすめ物件

浜松町駅徒歩圏のセットアップオフィス
港区芝公園
69.65m²〔21.07坪〕
69.65m²〔21.07坪〕
547,820円

ホテルをフルリノベしたデザイナーズオフィス ※最大20名想定(応相談)
港区赤坂
69.00m²〔20.87坪〕
69.00m²〔20.87坪〕
870,000円

ホテルをフルリノベしたデザイナーズオフィス ※最大8名想定(応相談)
港区赤坂5
35.00m²〔10.59坪〕
35.00m²〔10.59坪〕
440,000円

ホテルをフルリノベしたデザイナーズオフィス ※最大10名想定(応相談)
港区赤坂5
42.00m²〔12.71坪〕
42.00m²〔12.71坪〕
550,000円

田町駅徒歩圏の築浅フルセットアップオフィス
港区芝
75.83m²〔22.94坪〕
75.83m²〔22.94坪〕
779,960円

田町駅徒歩圏のセットアップオフィス
港区三田
236.79m²〔71.63坪〕
236.79m²〔71.63坪〕
相談
物件情報
- 賃料
505,180円
- 敷金・保証金
- 8ヶ月
- 礼金
- 無し
- 償却等
- 更新料:1ヵ月
※室内写真は別区画のイメージです
- 所在地
- 港区芝公園
- 交通
- 三田線「御成門」2分
大江戸線・浅草線「大門」6分
JR・東京モノレール「浜松町」10分
- 構造規模
-
鉄筋コンクリート造
地下1階 地上8階
- 契約面積
- 64.23m²(約19.43坪)
- 所在階
- 5階
入居可能時期
2026年8月上旬
受付時間:平日9:00~18:00






