表参道駅徒歩圏の居抜きオフィス
問い合わせ番号:50218
物件情報
- 賃料
- 相談
- 敷金・保証金
- 相談
- 礼金
- 無し
- 所在地
- 港区南青山
- 交通
- 銀座線・半蔵門線・千代田線「表参道」6分
- 構造規模
-
鉄筋コンクリート造
地下1階 地上9階
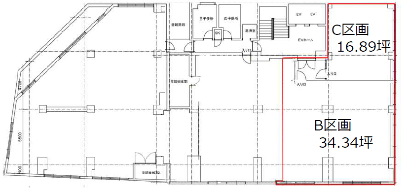
- 契約面積
- 169.40m²(約51.24坪)
- 所在階
- 3階
入居可能時期
相談
備考
東京メトロ銀座線、千代田線、半蔵門線表参道駅徒歩6分、1965年2月竣工、2008年に耐震補強工事実施、
鉄骨鉄筋コンクリート造地上9階・地下1階の賃貸オフィス。
OAフロア、個別空調、24時間利用可能、男女別トイレ・エレベーター2基・駐車場あり。
周辺は南青山・表参道エリアで骨董通りに面しておりアートギャラリーやインテリアショップ、高級ブランドショップが点在。
表参道ヒルズ、AOビルやおしゃれなカフェ、セレクトショップなどが徒歩圏。
銀行、郵便局、コンビニ、ドラッグストアも利用ができる便利な環境。
このエリアの居抜きオフィス、8名用の個室会議室と役員室、休憩スペースが設置済み。
執務室は20-30名前後でのご利用を想定。表参道の内装付きオフィスです。
会員限定公開情報は
無料会員登録後に閲覧いただけます
間取り

間取り

同じエリアのおすすめ物件
物件情報
- 賃料
- 相談
- 敷金・保証金
- 相談
- 礼金
- 無し
- 所在地
- 港区南青山
- 交通
- 銀座線・半蔵門線・千代田線「表参道」6分
- 構造規模
-
鉄筋コンクリート造
地下1階 地上9階
- 契約面積
- 169.40m²(約51.24坪)
- 所在階
- 3階
入居可能時期
相談
受付時間:平日9:00~18:00











