芝公園付近のセットアップオフィス
問い合わせ番号:49137
物件情報
- 賃料
480,480円
- 敷金・保証金
- 4カ月
- 礼金
- 無し
- 償却等
- 更新料:1カ月
償却:1カ月
- 所在地
- 港区芝
- 交通
- 大江戸線「赤羽橋」3分
三田線「芝公園」6分
浅草線「三田」10分
JR「田町」12分
- 構造規模
-
鉄筋鉄骨コンクリート造
地下1階 地上9階
- 契約面積
- 81.47m²(約24.64坪)
- 所在階
- 9階
入居可能時期
2026年3月上旬
備考
都営大江戸線赤羽橋駅徒歩3分、都営三田線芝公園駅徒歩6分、都営浅草線三田駅徒歩10分、JR田町駅も徒歩圏。
桜田通りに面するデザイナーズオフィス。1988年竣工、鉄骨鉄筋コンクリート造、地上9階地下1階建ての賃貸オフィス。
男女別トイレ、個別空調、バルコニー付き。
周辺には増上寺や芝公園、東京タワーがあり、緑が多い心地いいエリア。
慶応大学近辺には商店街があり、飲食店も密集しており、お食事処にも事欠かない。
コンビニ、ドラッグストア、郵便局、カフェなども近くに揃っている。
このエリアのセットアップオフィス。天井を落としスケルトンにした開放的な空間、ライティングレールにダウンライト、
床はフローリングと現在のトレンドのデザイナーズオフィスにリノベーション。
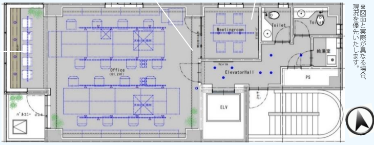
4名用の個室会議室が設置済み。執務室は最大20名前後でのご利用を想定。
芝公園の内装付きオフィスです。
会員限定公開情報は
無料会員登録後に閲覧いただけます
間取り

同じエリアのおすすめ物件

敷金・原状回復工事無し!虎ノ門駅付近のフルセットアップオフィス
港区西新橋
83.53m²〔25.27坪〕
83.53m²〔25.27坪〕
相談

敷金・原状回復工事無し!浜松町駅付近のフルセットアップオフィス
港区浜松町
49.00m²〔14.82坪〕
49.00m²〔14.82坪〕
474,240円

大門エリアのセットアップオフィス
港区芝大門
257.49m²〔77.89坪〕
257.49m²〔77.89坪〕
2,336,700円

新橋のハーフセットアップオフィス
港区新橋六丁目2番1
330.55m²〔99.99坪〕
330.55m²〔99.99坪〕
相談

汐留の大型ハイグレード居抜きオフィス
港区東新橋
1272m²〔384.78坪〕
1272m²〔384.78坪〕
相談

共用部充実!六本木エリアの築浅デザイナーズオフィス
港区六本木
137.88m²〔41.71坪〕
137.88m²〔41.71坪〕
1,380,000円
物件情報
- 賃料
480,480円
- 敷金・保証金
- 4カ月
- 礼金
- 無し
- 償却等
- 更新料:1カ月
償却:1カ月
- 所在地
- 港区芝
- 交通
- 大江戸線「赤羽橋」3分
三田線「芝公園」6分
浅草線「三田」10分
JR「田町」12分
- 構造規模
-
鉄筋鉄骨コンクリート造
地下1階 地上9階
- 契約面積
- 81.47m²(約24.64坪)
- 所在階
- 9階
入居可能時期
2026年3月上旬
受付時間:平日9:00~18:00



