共用部充実!麻布エリアの築浅オフィス
問い合わせ番号:48423
物件情報
- 賃料
1,212,960円
- 共益費
- 191,520円
- 敷金・保証金
- 相談
- 礼金
- 無し
- 償却等
- 更新料:1ヵ月
※室内写真は別区画のイメージとなります
- 所在地
- 港区麻布台
- 交通
- 日比谷線「神谷町」直結
南北線「六本木一丁目」2分
大江戸線「六本木」10分
三田線「御成門」11分
- 構造規模
-
鉄筋鉄骨コンクリート造
地下5階 地上64階
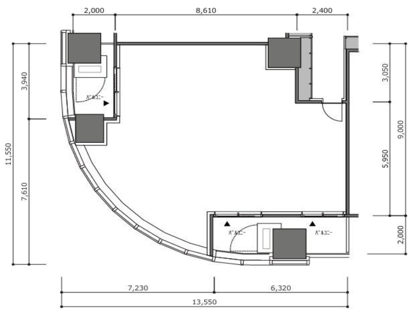
- 契約面積
- 98.42m²(約29.77坪)
- 所在階
- 4階
入居可能時期
即日入居可
備考
東京メトロ六本木一丁目駅徒歩1分、東京メトロ神谷町駅徒歩8分、 「5番出口」から地下通路直結。
2025年竣工、鉄骨鉄筋コンクリート造52階建ての超高層オフィス。
住宅、店舗、ホテル、インターナショナルスクール、文化施設などを統合した大規模複合開発。
敷地内には中央広場、果樹園、屋上緑化があり。商業施設も複数あり、飲食店、カフェ、クリニック、ハイブランドショップなどが入居中。
執務室は10-15名前後でのご利用を想定。
共用ラウンジにも個室会議室が完備。麻布台の内装付きオフィスです。
会員限定公開情報は
無料会員登録後に閲覧いただけます
間取り

物件情報
- 賃料
1,212,960円
- 共益費
- 191,520円
- 敷金・保証金
- 相談
- 礼金
- 無し
- 償却等
- 更新料:1ヵ月
※室内写真は別区画のイメージとなります
- 所在地
- 港区麻布台
- 交通
- 日比谷線「神谷町」直結
南北線「六本木一丁目」2分
大江戸線「六本木」10分
三田線「御成門」11分
- 構造規模
-
鉄筋鉄骨コンクリート造
地下5階 地上64階
- 契約面積
- 98.42m²(約29.77坪)
- 所在階
- 4階
入居可能時期
即日入居可
受付時間:平日9:00~18:00

















