仲介手数料無料
六本木エリアの大型居抜きオフィス
問い合わせ番号:47653
物件情報
- 賃料
- 相談
- 敷金・保証金
- 相談
- 礼金
- 無し
- 所在地
- 港区六本木
- 交通
- 日比谷線・大江戸線「六本木」6分
南北線「六本木一丁目」7分
- 構造規模
-
鉄筋鉄骨コンクリート造
地下3階 地上11階
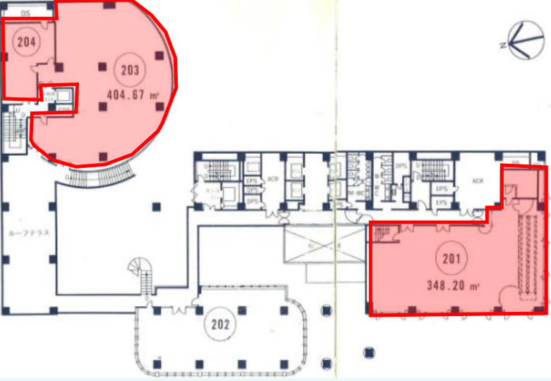
- 契約面積
- 348.20m²(約105.33坪)
- 所在階
- 2階
入居可能時期
相談
備考
東京メトロ日比谷線、都営大江戸線六本木駅徒歩6分、 東京メトロ南北線六本木一丁目駅徒歩7分。
1993年1月竣工、鉄骨鉄筋コンクリート造、地下3階・地上11階建ての賃貸オフィス。
OAフロア、天井高2,600mm、個別空調、光ファイバー対応、機械警備・有人管理、駐車場あり。
周辺には六本木交差点があり、飲食店・コンビニ・ショップが多い。ミッドタウンや六本木ヒルズも徒歩圏。
このエリアの居抜きオフィス、ご興味のある方はお問合せください。
六本木の内装付きオフィスです。
会員限定公開情報は
無料会員登録後に閲覧いただけます
間取り

同じエリアのおすすめ物件

超おすすめ 入居者特典充実のハイグレードフルセットアップオフィス
港区麻布台
72.72m²〔22.00坪〕
72.72m²〔22.00坪〕
相談

超おすすめ 入居者特典充実のハイグレードフルセットアップオフィス
港区麻布台
85.95m²〔26.00坪〕
85.95m²〔26.00坪〕
相談

超おすすめ 入居者特典充実のハイグレードフルセットアップオフィス
港区麻布台
94.86m²〔28.70坪〕
94.86m²〔28.70坪〕
相談

超おすすめ 入居者特典充実のハイグレードフルセットアップオフィス
港区麻布台
52.89m²〔16.00坪〕
52.89m²〔16.00坪〕
相談

超おすすめ 入居者特典充実のハイグレードフルセットアップオフィス
港区麻布台
56.19m²〔17.00坪〕
56.19m²〔17.00坪〕
相談

超おすすめ 入居者特典充実のハイグレードフルセットアップオフィス
港区麻布台
72.72m²〔22.00坪〕
72.72m²〔22.00坪〕
相談
物件情報
- 賃料
- 相談
- 敷金・保証金
- 相談
- 礼金
- 無し
- 所在地
- 港区六本木
- 交通
- 日比谷線・大江戸線「六本木」6分
南北線「六本木一丁目」7分
- 構造規模
-
鉄筋鉄骨コンクリート造
地下3階 地上11階
- 契約面積
- 348.20m²(約105.33坪)
- 所在階
- 2階
入居可能時期
相談
受付時間:平日9:00~18:00





