仲介手数料無料

赤坂見附駅徒歩圏の築浅セットアップオフィス 敷金0相談

問い合わせ番号:47523

赤坂エリアのフルセットアップオフィス

執務室の什器も設置済み

人気の新築物件

外観

物件情報

賃料
相談
敷金・保証金
相談

※保証会社に加入することにより敷金0相談
審査の内容によっては敷金が積み増しになる可能性があります。

礼金
無し
所在地
港区赤坂
交通
銀座線・丸ノ内線「赤坂見附」4分
千代田線「赤坂」5分
南北線「溜池山王」7分
有楽町線・半蔵門線「永田町」9分
構造規模
鉄筋コンクリート造
地上13階
契約面積
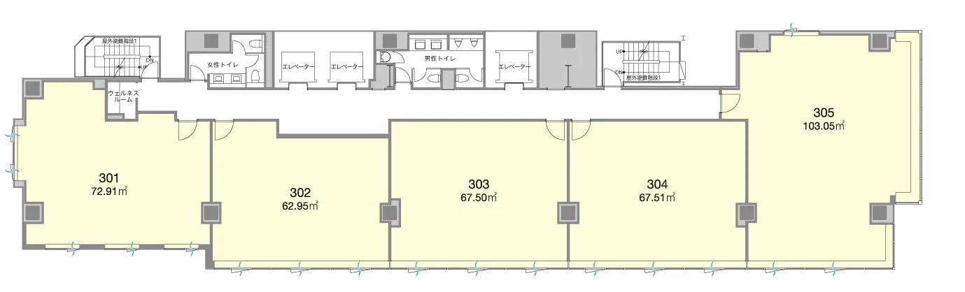
67.51m²(約20.42坪)
所在階
3

入居可能時期

即日入居可

備考

東京メトロ銀座線・丸ノ内線赤坂見附駅徒歩4分 東京メトロ千代田線赤坂駅徒歩5分 東京メトロ南北線・銀座線溜池山王駅徒歩7分 。
2025年6月竣工予定の13階建て赤坂みすじ通りに面する新築サービスオフィスです。完全個室の小規模オフィスを利便性の高い複合施設と融合させた設計が特徴です
1・2階:フードホール。仕切りのない開放的なフードホールが営業予定で、テナント同士の交流を促進する場としてデザインされています
13階:ルーフトップバー赤坂の街並みを一望できる屋上バーを併設。リフレッシュや商談にも活用できそうです
全室窓付き、個別空調完備、スケルトン天井、木の温もりあるインテリア、生体認証キーレスアクセス、有人受付・機械監視による高い安全性
駐車場3基、屋上テラスあり。周辺にはレストランやカフェ、居酒屋、飲食店が豊富なエリア。
ホテルや商業施設、ビジネスラウンジなども近隣にあり、ビジネス利用者にとって魅力的なロケーションです。
このエリアのフルセットアップオフィス、8名用の個室会議室が設置済み。執務室は35名前後でのご利用を想定。5階のラウンジや屋上テラス等、共用部も充実。
赤坂の内装付きオフィスです。

会員限定公開情報
無料会員登録後に閲覧いただけます

間取り

物件情報

賃料
相談
敷金・保証金
相談

※保証会社に加入することにより敷金0相談
審査の内容によっては敷金が積み増しになる可能性があります。

礼金
無し
所在地
港区赤坂
交通
銀座線・丸ノ内線「赤坂見附」4分
千代田線「赤坂」5分
南北線「溜池山王」7分
有楽町線・半蔵門線「永田町」9分
構造規模
鉄筋コンクリート造
地上13階
契約面積
67.51m²(約20.42坪)
所在階
3

入居可能時期

即日入居可

03-6260-9380

受付時間:平日9:00~18:00

現在の検索結果

気になる物件のご質問、ご要望、内覧等は
お問い合わせフォーム または
お電話 でご連絡ください。

03-6260-9380

営業時間:平日9:00~18:00

×

条件で物件を探す

エリア

広さ

坪 ~

こだわり

キャンセル