田町駅徒歩圏のセットアップオフィス
問い合わせ番号:46789
物件情報
- 賃料
- 相談
- 敷金・保証金
- 相談
- 礼金
- 無し
- 所在地
- 港区三田
- 交通
- 浅草線・三田線「三田」4分
JR「田町」6分
大江戸線「赤羽橋」11分
- 構造規模
-
鉄筋鉄骨コンクリート造
地下1階 地上14階
- 契約面積
- 236.79m²(約71.63坪)
- 所在階
- 5階
入居可能時期
相談
備考
都営浅草線、都営三田線三田駅徒歩4分、 JR 山手線、京浜東北線徒歩田町駅 徒歩6分、
2011年10月竣工、鉄筋コンクリート造地上14階、地下1階 、天井高 2,600 mm、
個別空調、機械警備、OAフロア対応、男女別トイレ、エレベーター2基、機械式駐車場あり。
セキュリティ(ICカード制・防犯カメラなど)あり。
周辺には慶應義塾大学 三田キャンパスが近く、三田商店街があり、飲食店・カフェなどランチや会食などの選択肢が多いエリア。
郵便局、銀行・ATMな近く便利。このエリアのセットアップオフィス、
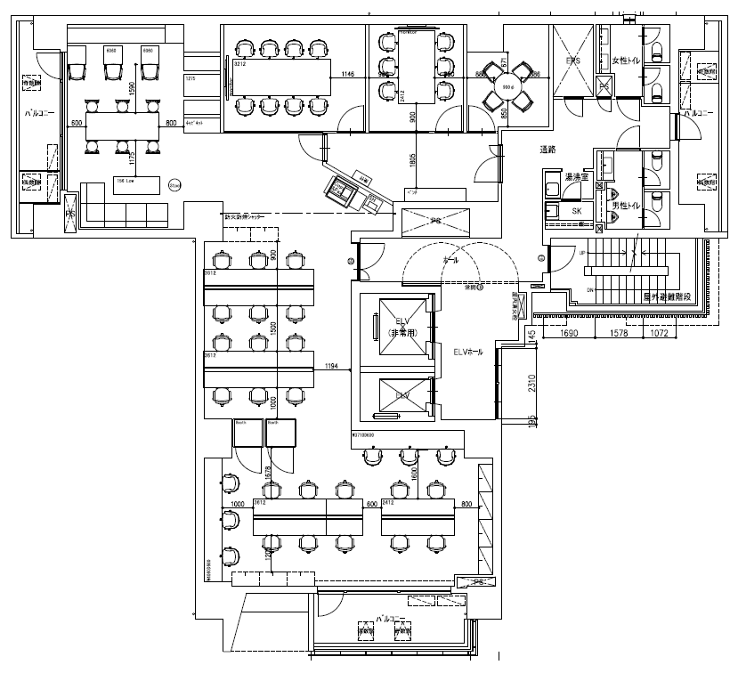
4名用・6名用・8名用の個室会議室と個室ブースが設置済み。執務室は30名前後でのご利用を想定。
田町、三田の内装付きオフィスです。
会員限定公開情報は
無料会員登録後に閲覧いただけます
間取り

同じエリアのおすすめ物件

浜松町のハーフセットアップオフィス 敷金無料相談
港区浜松町
306.48m²〔92.71坪〕
306.48m²〔92.71坪〕
相談

赤坂見附駅徒歩圏の築浅フルセットアップオフィス 敷金0相談
港区赤坂
67.50m²〔20.42坪〕
67.50m²〔20.42坪〕
相談

赤坂見附駅徒歩圏の築浅フルセットアップオフィス 敷金0相談
港区赤坂
108.60m²〔32.85坪〕
108.60m²〔32.85坪〕
相談

浜松町駅徒歩圏のセットアップオフィス
港区芝公園
64.23m²〔19.43坪〕
64.23m²〔19.43坪〕
505,180円

浜松町駅徒歩圏のセットアップオフィス
港区芝公園
69.65m²〔21.07坪〕
69.65m²〔21.07坪〕
547,820円

ホテルをフルリノベしたデザイナーズオフィス ※最大20名想定(応相談)
港区赤坂
69.00m²〔20.87坪〕
69.00m²〔20.87坪〕
870,000円
物件情報
- 賃料
- 相談
- 敷金・保証金
- 相談
- 礼金
- 無し
- 所在地
- 港区三田
- 交通
- 浅草線・三田線「三田」4分
JR「田町」6分
大江戸線「赤羽橋」11分
- 構造規模
-
鉄筋鉄骨コンクリート造
地下1階 地上14階
- 契約面積
- 236.79m²(約71.63坪)
- 所在階
- 5階
入居可能時期
相談
受付時間:平日9:00~18:00





