新橋エリアのバルコニー付き居抜きオフィス
問い合わせ番号:42885
物件情報
- 賃料
- 相談
- 敷金・保証金
- 6ヵ月
- 礼金
- 無し
- 所在地
- 港区東新橋
- 交通
- 三田線「御成門」5分
浅草線・大江戸線「大門」6分
JR・銀座線「新橋」8分
- 構造規模
-
鉄骨造
地上11階
- 契約面積
- 114.27m²(約34.57坪)
- 所在階
- 11階
入居可能時期
即日入居可
備考
都営三田線「御成門駅」徒歩約5分、都営浅草線「大門駅」徒歩6分、都営大江戸線「汐留駅」徒歩約7分、JR山手線・京浜東北線「新橋駅」徒歩8分。
2005年10月竣工、地上11階建て天井高2,700 mmの賃貸オフィス。
周辺には汐留イタリア街があり石畳が美しいすごしやすい環境。第一京浜から少し入った静かで落ち着いた雰囲気のエリアです。
コンビニや、レストラン、金融機関(信用金庫、郵便局)もあり便利。このエリアの居抜きオフィス、
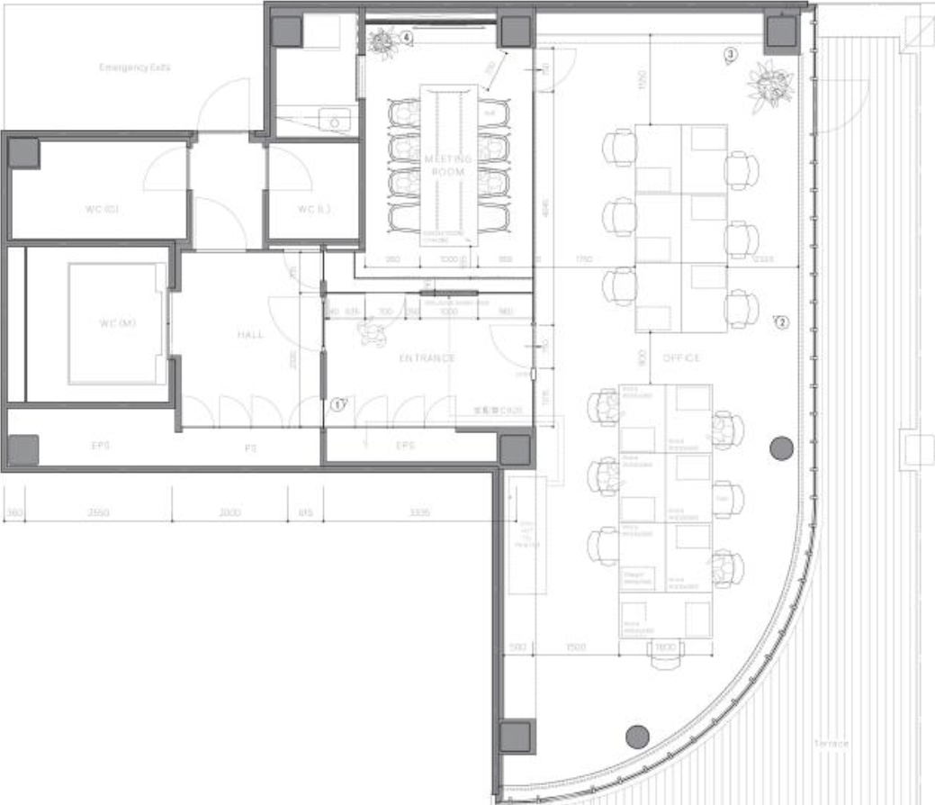
8名用の個室会議室が設置済み。執務室は12名前後でのご利用を想定。最上階のフロアで専用のバルコニー付き区画です。
汐留の内装付きオフィスです。
会員限定公開情報は
無料会員登録後に閲覧いただけます
間取り

同じエリアのおすすめ物件

超おすすめ 入居者特典充実のハイグレードフルセットアップオフィス
港区麻布台
72.72m²〔22.00坪〕
72.72m²〔22.00坪〕
相談

超おすすめ 入居者特典充実のハイグレードフルセットアップオフィス
港区麻布台
85.95m²〔26.00坪〕
85.95m²〔26.00坪〕
相談

超おすすめ 入居者特典充実のハイグレードフルセットアップオフィス
港区麻布台
94.86m²〔28.70坪〕
94.86m²〔28.70坪〕
相談

超おすすめ 入居者特典充実のハイグレードフルセットアップオフィス
港区麻布台
52.89m²〔16.00坪〕
52.89m²〔16.00坪〕
相談

超おすすめ 入居者特典充実のハイグレードフルセットアップオフィス
港区麻布台
56.19m²〔17.00坪〕
56.19m²〔17.00坪〕
相談

超おすすめ 入居者特典充実のハイグレードフルセットアップオフィス
港区麻布台
72.72m²〔22.00坪〕
72.72m²〔22.00坪〕
相談
物件情報
- 賃料
- 相談
- 敷金・保証金
- 6ヵ月
- 礼金
- 無し
- 所在地
- 港区東新橋
- 交通
- 三田線「御成門」5分
浅草線・大江戸線「大門」6分
JR・銀座線「新橋」8分
- 構造規模
-
鉄骨造
地上11階
- 契約面積
- 114.27m²(約34.57坪)
- 所在階
- 11階
入居可能時期
即日入居可
受付時間:平日9:00~18:00





