浜町の築浅フルセットアップオフィス 敷金0相談
問い合わせ番号:54199
物件情報
- 賃料
999,000円
- 敷金・保証金
-
相談
※保証会社に加入することにより敷金0相談
審査の内容によっては敷金が積み増しになる可能性があります。
- 所在地
- 中央区日本橋浜町
- 交通
- 新宿線「浜町」1分
日比谷線・浅草線「人形町」7分
半蔵門「水天宮」7分
- 構造規模
-
鉄筋コンクリート造
地上9階
- 契約面積
- 118.08m²(約35.72坪)
- 所在階
- 3階
入居可能時期
相談
備考
都営新宿線 浜町駅まで徒歩1分東京メトロ日比谷線 人形町駅まで徒歩7分
都営浅草線 人形町駅まで徒歩7分、東京メトロ半蔵門線 水天宮前駅まで徒歩8分、
都営浅草線 東日本橋駅まで徒歩9分、2022年3月竣工、鉄骨造9階建の賃貸オフィス。
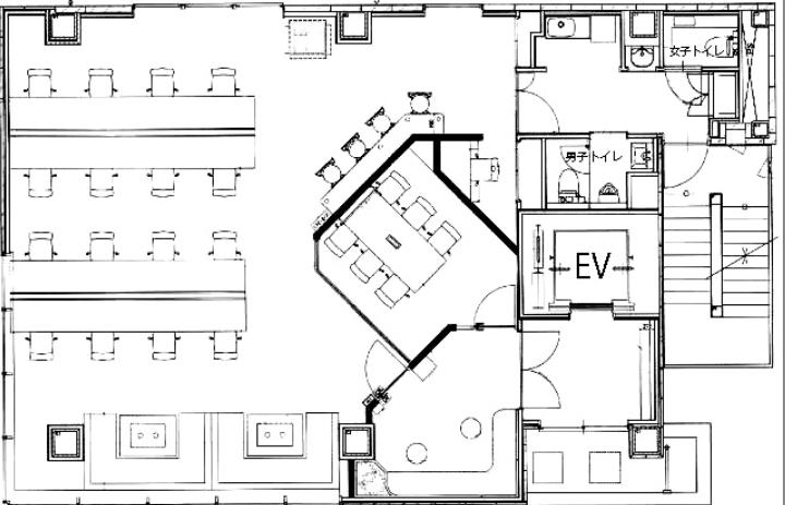
EV 1基、天井高2700㎜、OAフロア(H=100mm)、個別空調、トイレ専用男女別洋式、EV不停止機能付。
周辺には明治座、浜町公園があり下町情緒を感じさせる環境。
人形町まで足を運べば数多くの飲食店もあり、名店もあり楽しみなエリア。
このエリアのフルセットアップオフィス、イニシャルコストを抑え移転されたい方にお勧め。
会議室(モニター付)・執務室什器付きのフルセットアップ。
ファミレス席のリフレッシュスペースやテレカンブースも1つついています。
浜町の内装付きオフィスです。
会員限定公開情報は
無料会員登録後に閲覧いただけます
間取り

同じエリアのおすすめ物件

京橋駅徒歩圏のシェアオフィス ※10名想定
24.40m²〔7.38坪〕
605,000円

京橋駅徒歩圏のシェアオフィス ※9名想定
19.20m²〔5.81坪〕
544,500円

京橋駅徒歩圏のシェアオフィス ※8名想定
22.80m²〔6.90坪〕
484,000円

京橋駅徒歩圏のシェアオフィス ※5名想定
11.60m²〔3.51坪〕
302,000円

京橋駅徒歩圏のシェアオフィス ※6名想定
13.60m²〔4.11坪〕
363,000円

敷金無し相談可能。人形町エリアの内装付きオフィス。
276.96m²〔83.78坪〕
相談
物件情報
- 賃料
999,000円
- 敷金・保証金
-
相談
※保証会社に加入することにより敷金0相談
審査の内容によっては敷金が積み増しになる可能性があります。
- 所在地
- 中央区日本橋浜町
- 交通
- 新宿線「浜町」1分
日比谷線・浅草線「人形町」7分
半蔵門「水天宮」7分
- 構造規模
-
鉄筋コンクリート造
地上9階
- 契約面積
- 118.08m²(約35.72坪)
- 所在階
- 3階
入居可能時期
相談
受付時間:平日9:00~18:00








