人形町のフルセットアップオフィス

問い合わせ番号:53158

人形町のフルセットアップオフィス

人形町の内装付きオフィス

物件情報

賃料

531,750

敷金・保証金
6ヶ月
所在地
中央区日本橋人形町
交通
日比谷線 「人形町」4分
浅草線 「人形町」4分
新宿線 「浜町」5分
半蔵門線 「水天宮前」6分
新宿線 「馬喰横山」8分
構造規模
鉄筋コンクリート造
地上10階
契約面積
68.31m²(約20.66坪)
所在階
1階

入居可能時期

相談

備考

東京メトロ日比谷線 人形町駅まで徒歩4分、都営浅草線 人形町駅まで徒歩4分、都営新宿線 浜町駅まで徒歩5分
東京メトロ半蔵門線 水天宮前駅まで徒歩6分、都営新宿線 馬喰横山駅まで徒歩8分、
1993年1月竣工、鉄骨鉄筋コンクリート造10階建の賃貸オフィス。
2026年5月、エントランス・共用部等リニューアル工事完了。
EV1基(9人乗)、駐車場有、OAフロア、個別空調、トイレ専用男女別洋式、機械警備、EV不停止機能付。
周辺は下町情緒とビジネス機能が共存するエリア、老舗飲食店・甘酒横丁など歴史ある商業環境、
飲食店が多数点在、和食・定食・カフェなど幅広く、ランチには困らない。
徒歩1分圏にセブンイレブンがあります。銀行・郵便局が近隣に集積。
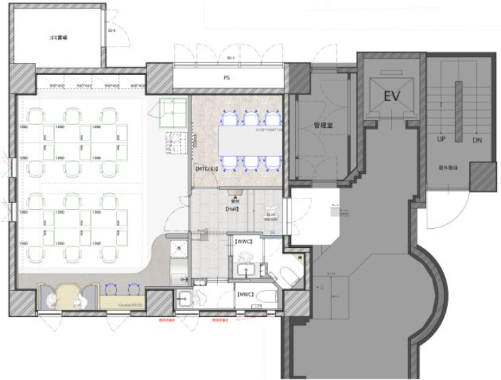
このエリアのフルセットアップオフィス、テレカンブース1室、6名用会議室、執務室什器12名分設置、
人形町の内装付きオフィスです。

会員限定公開情報
無料会員登録後に閲覧いただけます

間取り

物件情報

賃料

531,750

敷金・保証金
6ヶ月
所在地
中央区日本橋人形町
交通
日比谷線 「人形町」4分
浅草線 「人形町」4分
新宿線 「浜町」5分
半蔵門線 「水天宮前」6分
新宿線 「馬喰横山」8分
構造規模
鉄筋コンクリート造
地上10階
契約面積
68.31m²(約20.66坪)
所在階
1階

入居可能時期

相談

03-6260-9380

受付時間:平日9:00~18:00

現在の検索結果

気になる物件のご質問、ご要望、内覧等は
お問い合わせフォーム または
お電話 でご連絡ください。

03-6260-9380

営業時間:平日9:00~18:00

×

条件で物件を探す

エリア

広さ

坪 ~

こだわり

キャンセル