敷金無し!複数路線利用可能なセットアップオフィス
問い合わせ番号:50028
物件情報
- 賃料
650,000円
- 敷金・保証金
-
無し
※保証会社に加入することにより敷金0相談
審査の内容によっては敷金が積み増しになる可能性があります。
- 礼金
- 無し
- 償却等
- 更新料:1ヵ月
※室内写真は別フロアの写真となります
- 所在地
- 中央区東日本橋
- 交通
- 浅草線「東日本橋」5分
JR「馬喰町」5分
新宿線「馬喰横山」5分
JR「浅草橋」7分
日比谷線「小伝馬町」9分
- 構造規模
-
鉄筋鉄骨コンクリート造
地上9階
- 契約面積
- 98.67m²(約29.85坪)
- 所在階
- 5階
入居可能時期
相談
備考
都営浅草線東日本橋駅徒歩5分、都営新宿線馬喰横山駅徒歩4分、
JR総武快速線馬喰町駅徒歩5分、JR総武線浅草橋駅徒歩7分、東京メトロ日比谷線小伝馬町駅徒歩9分。
1990年6月竣工、鉄骨鉄筋コンクリート造地上9階建ての賃貸オフィス。
エレベーター1基、個別空調、男女別トイレ、機械警備、 駐車場あり、24時間使用可能。
OAフロア、天井高約2,400mm。周辺にカフェや多種多様な飲食店があり、
コンビニ、銀行ATM、郵便局が徒歩圏の便利な環境。
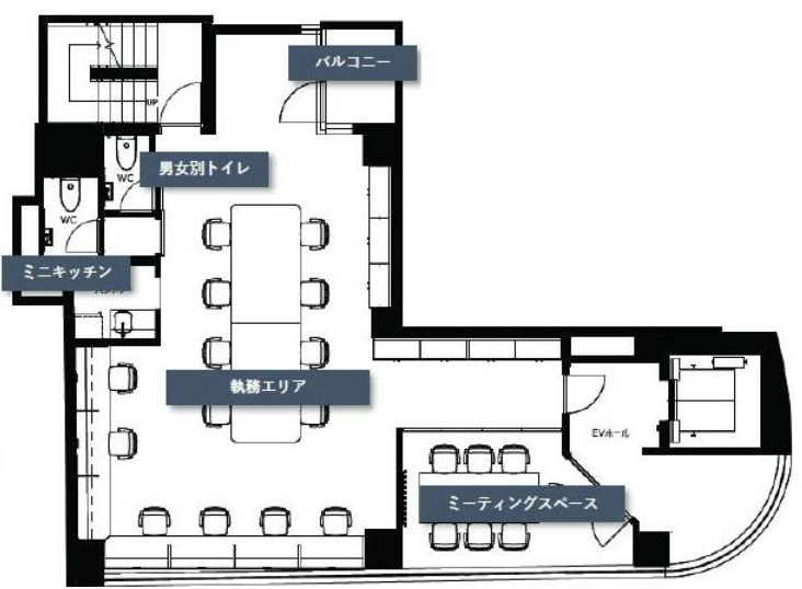
このエリアのセットアップオフィス、6名用の個室会議室が設置済み。
執務室は15名前後でのご利用を想定。東日本橋の内装付きオフィスです。
会員限定公開情報は
無料会員登録後に閲覧いただけます
間取り

同じエリアのおすすめ物件

小伝馬町のフルセットアップオフィス
中央区日本橋小伝馬町
69.29m²〔20.96坪〕
69.29m²〔20.96坪〕
524,000円

小伝馬町のフルセットアップオフィス
中央区日本橋小伝馬町
118.74m²〔35.92坪〕
118.74m²〔35.92坪〕
898,000円

日本橋小伝馬町エリアのセットアップオフィス
中央区日本橋小伝馬町16
68.23m²〔20.64坪〕
68.23m²〔20.64坪〕
495,360円

京橋エリアの内装付きオフィス
中央区京橋1
159.96m²〔48.39坪〕
159.96m²〔48.39坪〕
1,548,160円

築地エリアのフルセットアップオフィス
中央区築地
100.14m²〔30.29坪〕
100.14m²〔30.29坪〕
757,250円

八丁堀駅付近の築浅居抜きオフィス
中央区八丁堀
213.69m²〔64.64坪〕
213.69m²〔64.64坪〕
相談
物件情報
- 賃料
650,000円
- 敷金・保証金
-
無し
※保証会社に加入することにより敷金0相談
審査の内容によっては敷金が積み増しになる可能性があります。
- 礼金
- 無し
- 償却等
- 更新料:1ヵ月
※室内写真は別フロアの写真となります
- 所在地
- 中央区東日本橋
- 交通
- 浅草線「東日本橋」5分
JR「馬喰町」5分
新宿線「馬喰横山」5分
JR「浅草橋」7分
日比谷線「小伝馬町」9分
- 構造規模
-
鉄筋鉄骨コンクリート造
地上9階
- 契約面積
- 98.67m²(約29.85坪)
- 所在階
- 5階
入居可能時期
相談
受付時間:平日9:00~18:00







