日本橋エリアの内装付きオフィス
問い合わせ番号:49651
物件情報
- 賃料
643,680円
- 敷金・保証金
- 5カ月
- 礼金
- 無し
- 所在地
- 中央区日本橋2
- 交通
- 銀座線・東西線・銀座線「日本橋」3分
日比谷線「茅場町」6分
JR・丸ノ内線「東京」11分
- 構造規模
-
鉄骨造
地上9階
- 契約面積
- 78.80m²(約23.84坪)
- 所在階
- 4階
入居可能時期
2026年6月上旬
備考
東京メトロ銀座線 日本橋駅まで徒歩3分、東京メトロ東西線 日本橋駅まで徒歩3分
東京メトロ日比谷線 茅場町駅まで徒歩6分、JR 東京駅まで徒歩7分。
1993年4月竣工、鉄骨造、9階建の昭和通りから1本入った首都高に面する賃貸オフィス。
EV1基(9人乗)、OAフロア、個別空調、トイレ男女別洋式。
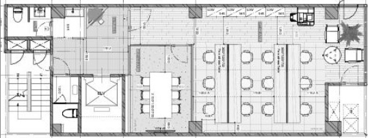
人気のセットアップオフィスでデザイナーズ仕様のおしゃれな内装が魅力。
6名用の個室会議室1カ所設置済み。執務室エリアは12名前後での利用を想定。
日本橋の内装付きオフィスです。
会員限定公開情報は
無料会員登録後に閲覧いただけます
間取り

同じエリアのおすすめ物件

八丁堀駅徒歩1分のセットアップオフィス
中央区八丁堀
120.79m²〔36.54坪〕
120.79m²〔36.54坪〕
1,023,120円

茅場町エリアのリノベーションセットアップオフィス 敷金0相談
中央区新川
136.89m²〔41.41坪〕
136.89m²〔41.41坪〕
911,030円

新富町駅1分、複数路線が使えるセットアップオフィス
中央区築地
225.13m²〔68.10坪〕
225.13m²〔68.10坪〕
1,430,100円

新川の格安大型居抜きオフィス
中央区新川
515m²〔155.79坪〕
515m²〔155.79坪〕
相談

小伝馬町駅徒歩3分の最上階フルセットアップオフィス
中央区日本橋小伝馬町
114.38m²〔34.60坪〕
114.38m²〔34.60坪〕
830,400円

人形町エリアのセットアップオフィス【キャンペーン実施中】
中央区日本橋久松町
201.49m²〔60.95坪〕
201.49m²〔60.95坪〕
1,401,850円
物件情報
- 賃料
643,680円
- 敷金・保証金
- 5カ月
- 礼金
- 無し
- 所在地
- 中央区日本橋2
- 交通
- 銀座線・東西線・銀座線「日本橋」3分
日比谷線「茅場町」6分
JR・丸ノ内線「東京」11分
- 構造規模
-
鉄骨造
地上9階
- 契約面積
- 78.80m²(約23.84坪)
- 所在階
- 4階
入居可能時期
2026年6月上旬
受付時間:平日9:00~18:00






