仲介手数料無料
銀座並木通りの居抜きオフィス
問い合わせ番号:48735
物件情報
- 賃料
- 相談
- 敷金・保証金
- 相談
- 所在地
- 中央区銀座
- 交通
- 有楽町線「銀座一丁目」
丸の内線・銀座線・日比谷線「銀座」
JR・有楽町線「有楽町」
- 構造規模
-
鉄筋鉄骨コンクリート造
地下2階 地上10階
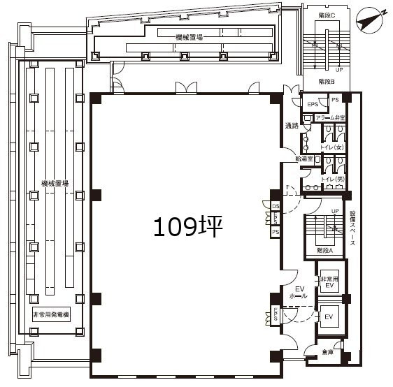
- 契約面積
- 360.34m²(約109.00坪)
- 所在階
- 階数非公表
入居可能時期
相談
備考
東京メトロ有楽町線銀座一丁目駅、東京メトロ銀座線・丸ノ内線・日比谷線銀座駅、JR山手線・京浜東北線有楽町駅。
2002年8月竣工、地上10階・地下2階建ての並木通りに面する賃貸オフィス。駐車場あり。
周辺はファッション・商業の中心地で、ラグジュアリブランドの基幹店が集まる銀座エリアの中心地です。
飲食店も豊富で、ランチや会食、アフター5にも事欠かない楽しいエリアです。
このエリアの居抜きオフィス、ご興味のある方はお問合せください。
銀座の内装付きオフィスです。
会員限定公開情報は
無料会員登録後に閲覧いただけます
間取り

同じエリアのおすすめ物件

便利な日本橋駅至近のセットアップオフィス(一部什器有)
中央区日本橋
83.4m²〔25.23坪〕
83.4m²〔25.23坪〕
相談

便利な日本橋駅至近のセットアップオフィス(一部什器有)
中央区日本橋
113.04m²〔34.19坪〕
113.04m²〔34.19坪〕
-1円

八丁堀エリアのセットアップオフィス
中央区八丁堀
112.54m²〔34.04坪〕
112.54m²〔34.04坪〕
900,000円

人形町のフルセットアップオフィス
中央区日本橋人形町
68.31m²〔20.66坪〕
68.31m²〔20.66坪〕
553,020円

八丁堀エリアのフルセットアップオフィス
中央区八丁堀
112.54m²〔34.04坪〕
112.54m²〔34.04坪〕
900,000円

東日本橋のセットアップオフィス
中央区日本橋久松町
77.62m²〔23.48坪〕
77.62m²〔23.48坪〕
600,000円
物件情報
- 賃料
- 相談
- 敷金・保証金
- 相談
- 所在地
- 中央区銀座
- 交通
- 有楽町線「銀座一丁目」
丸の内線・銀座線・日比谷線「銀座」
JR・有楽町線「有楽町」
- 構造規模
-
鉄筋鉄骨コンクリート造
地下2階 地上10階
- 契約面積
- 360.34m²(約109.00坪)
- 所在階
- 階数非公表
入居可能時期
相談
受付時間:平日9:00~18:00







