仲介手数料無料
水天宮の居抜きオフィス
問い合わせ番号:48563
物件情報
- 賃料
- 相談
賃料は会員登録後にご確認いただけます。
会員登録はこちらから
- 敷金・保証金
- 相談
- 所在地
- 中央区日本橋箱崎町
- 交通
- 半蔵門線「水天宮前」3分
東西線・日比谷線「「茅場町」7分
日比谷線・浅草線「人形町」9分
- 構造規模
-
鉄筋コンクリート造
地上8階
- 契約面積
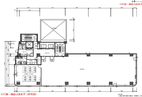
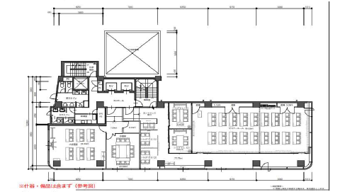
- 317.27m²(約95.97坪)
- 所在階
- 5階
入居可能時期
相談
備考
東京メトロ半蔵門線水天宮前駅徒歩約3分、東京メトロ日比谷線/東西線茅場町駅徒歩7分、
都営浅草線、東京メトロ日比谷線人形町駅徒歩9分。1993年8月竣工、鉄骨鉄筋コンクリート造地上8階の賃貸オフィス。
機械警備、OAフロア仕様、個別空調、24時間使用可、周辺にはローソン 箱崎湊店、カフェ・ド・クリエ箱崎町店があります。
このエリアの居抜きオフィス、ご興味のある方はお問合せください。
水天宮の内装付きオフィスです。
ハーフセットアップオフィスや什器が不足しているオフィスでも、家具・什器をサブスク・リースで導入することで、初期費用を抑えながら什器付きオフィスとして利用可能です。増員や働き方の変化にも柔軟に対応でき、購入・廃棄コストの削減にもつながります。
会員限定公開情報は
無料会員登録後に閲覧いただけます
間取り

間取り

間取り

同じエリアのおすすめ物件

日本橋の大型ハイグレードお勧め 居抜きオフィス 什器付き 工事不要 コストを抑え移転
中央区
694.21m²〔210坪〕
694.21m²〔210坪〕
相談

日本橋のハイグレード居抜きオフィス (会員限定)
中央区
661.16m²〔200坪〕
661.16m²〔200坪〕
相談

銀座エリアのフルセットアップオフィス
中央区銀座
81.98m²〔24.80坪〕
81.98m²〔24.80坪〕
743,700円

銀座エリアのフルセットアップオフィス
中央区銀座
81.98m²〔24.80坪〕
81.98m²〔24.80坪〕
630,090円

銀座の初期コスト削減のフルセットアップオフィス
中央区銀座
86.84m²〔26.27坪〕
86.84m²〔26.27坪〕
787,800円

小伝馬町の敷金0相談フルセットアップオフィス パソコン一つですぐに仕事を始めることができます
央区日本橋小伝馬町
83.27m²〔25.19坪〕
83.27m²〔25.19坪〕
662,740円
物件情報
- 賃料
- 相談
賃料は会員登録後にご確認いただけます。
会員登録はこちらから
- 敷金・保証金
- 相談
- 所在地
- 中央区日本橋箱崎町
- 交通
- 半蔵門線「水天宮前」3分
東西線・日比谷線「「茅場町」7分
日比谷線・浅草線「人形町」9分
- 構造規模
-
鉄筋コンクリート造
地上8階
- 契約面積
- 317.27m²(約95.97坪)
- 所在階
- 5階
入居可能時期
相談
受付時間:平日9:00~18:00

