八丁堀のセットアップオフィス 原状回復なし 敷金0相談
問い合わせ番号:48428
物件情報
- 賃料
829,920円
- 敷金・保証金
-
相談
※保証会社に加入することにより敷金0相談
審査の内容によっては敷金が積み増しになる可能性があります。
- 所在地
- 中央区八丁堀
- 交通
- JR「八丁堀」4分
日比谷線 「八丁堀」4分
浅草線 「宝町」4分
有楽町線「新富町」8分
東西線「茅場町」9分
- 構造規模
-
鉄筋コンクリート造
地上5階
- 契約面積
- 97.98m²(約29.64坪)
- 所在階
- 2階
入居可能時期
即日入居可
備考
八丁堀駅4分のほか、宝町駅や茅場町駅も徒歩圏の好立地。
八丁堀はオフィスビルが立ち並ぶビジネス街としての顔も持っています。
周辺には、日常生活に必要なスーパーやドラッグストア、コンビニエンスストアが揃っています
駅の近くには、隅田川が流れており、川沿いは散歩やランニングを楽しむ人たちに人気です。
川沿いの公園やベンチでゆったりとした時間を過ごすことができます。
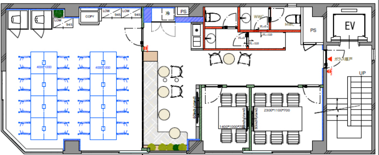
このエリアのセットアップオフィス。執務室・会議室(什器付き)、モニター付ラウンジ、テレカンブースを設置予定。
15名前後の企業向け、原状回復なし 敷金0相談、八丁堀の内装付きオフィスです。
会員限定公開情報は
無料会員登録後に閲覧いただけます
間取り

同じエリアのおすすめ物件

小伝馬町のフルセットアップオフィス
中央区日本橋小伝馬町
69.29m²〔20.96坪〕
69.29m²〔20.96坪〕
524,000円

小伝馬町のフルセットアップオフィス
中央区日本橋小伝馬町
118.74m²〔35.92坪〕
118.74m²〔35.92坪〕
898,000円

日本橋小伝馬町エリアのセットアップオフィス
中央区日本橋小伝馬町16
68.23m²〔20.64坪〕
68.23m²〔20.64坪〕
495,360円

京橋エリアの内装付きオフィス
中央区京橋1
159.96m²〔48.39坪〕
159.96m²〔48.39坪〕
1,548,160円

築地エリアのフルセットアップオフィス
中央区築地
100.14m²〔30.29坪〕
100.14m²〔30.29坪〕
757,250円

八丁堀駅付近の築浅居抜きオフィス
中央区八丁堀
213.69m²〔64.64坪〕
213.69m²〔64.64坪〕
相談
物件情報
- 賃料
829,920円
- 敷金・保証金
-
相談
※保証会社に加入することにより敷金0相談
審査の内容によっては敷金が積み増しになる可能性があります。
- 所在地
- 中央区八丁堀
- 交通
- JR「八丁堀」4分
日比谷線 「八丁堀」4分
浅草線 「宝町」4分
有楽町線「新富町」8分
東西線「茅場町」9分
- 構造規模
-
鉄筋コンクリート造
地上5階
- 契約面積
- 97.98m²(約29.64坪)
- 所在階
- 2階
入居可能時期
即日入居可
受付時間:平日9:00~18:00










