日本橋の新築フルセットアップオフィス
問い合わせ番号:47818
物件情報
- 賃料
- 相談
- 敷金・保証金
- 相談
- 所在地
- 中央区日本橋
- 交通
- 東西線・銀座線「日本橋」 4 分
浅草線「日本橋」 5分
JR各線「東京」 7分
浅草線「宝町」6分
銀座線「京橋」6分
日比谷線「八丁掘」8分
- 構造規模
-
鉄骨造
地上10階
- 契約面積
- 247.99m²(約75.02坪)
- 所在階
- 10階
入居可能時期
即日入居可
備考
東京メトロ東西線・銀座線「日本橋」駅 B1口より徒歩4分、都営浅草線「日本橋」駅 D3口より徒歩5分、
JR各線/新幹線各線「東京」駅 八重洲中央口より徒歩7分、都営浅草線「宝町」駅 A6出口より徒歩6分、
東京メトロ銀座線「京橋」駅 6出口より徒歩6分、東京メトロ日比谷線、「八丁掘」駅 A5a出口より徒歩8分。
025年12月末竣工、鉄骨造地上10階建の賃貸オフィス、天井高2,800mm・OAフロア50mm、床荷重500kg/㎡対応
個別空調・LED照明など、ハイスペック仕様。
屋上庭園・喫煙スペース(屋上階)・1階タッチダウンスペースなど、働きやすさ・リフレッシュ環境も意識された設計。
日本橋・八重洲・京橋など東京都心の中枢ビジネスエリアに位置しており、企業オフィス、金融機関、本社機能などが集まるエリアです。
周辺には飲食店、カフェ、銀行・コンビニ等があり便利な環境、トフロムや東京トーチなど大型再開発も進みさらに活気のあるエリアに。
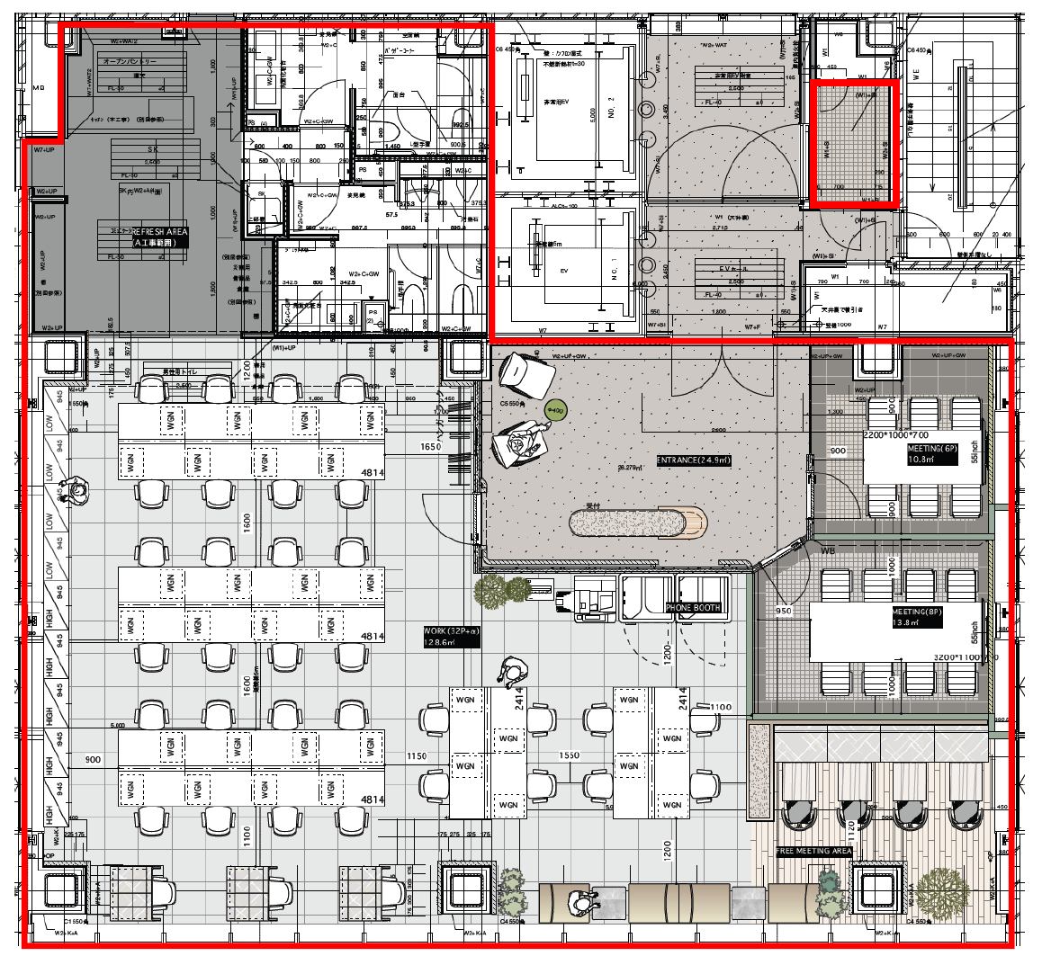
このエリアの新築フルセットアップオフィス、受付、8名、6名会議室、什器付き。
ご興味のある方はお問合せください。30名~40名の企業向け日本橋の内装付きオフィスです。
会員限定公開情報は
無料会員登録後に閲覧いただけます
間取り

同じエリアのおすすめ物件

複数路線が利用可能、銀座の居抜きオフィス
212.69m²〔64.34坪〕
相談

水天宮の内装付きオフィス
163.27m²〔49.39坪〕
691,460円

浜町エリア。共用部充実の会議室付き居抜きオフィス。
92.23m²〔27.90坪〕
530,100円

浜町エリア。共用部充実の会議室付き居抜きオフィス。
133.69m²〔40.44坪〕
727,920円

八丁堀エリアの内装付きオフィス
112.54m²〔34.04坪〕
900,000円

日本橋本町の格安美装居抜きオフィス
219m²〔66.25坪〕
相談
物件情報
- 賃料
- 相談
- 敷金・保証金
- 相談
- 所在地
- 中央区日本橋
- 交通
- 東西線・銀座線「日本橋」 4 分
浅草線「日本橋」 5分
JR各線「東京」 7分
浅草線「宝町」6分
銀座線「京橋」6分
日比谷線「八丁掘」8分
- 構造規模
-
鉄骨造
地上10階
- 契約面積
- 247.99m²(約75.02坪)
- 所在階
- 10階
入居可能時期
即日入居可
受付時間:平日9:00~18:00








