敷金・原状回復工事無し!日本橋エリアのフルセットアップオフィス
問い合わせ番号:47688
物件情報
- 賃料
740,000円
- 敷金・保証金
-
無し
※保証会社に加入することにより敷金0相談
審査の内容によっては敷金が積み増しになる可能性があります。
- 礼金
- 無し
- 償却等
- ※原状回復工事は原則クリーニング程度です
※1階の共用部が充実しています
※執務室什器付きです
- 所在地
- 中央区日本橋小網町
- 交通
- 半蔵門線「水天宮」5分
日比谷線・浅草線「人形町」5分
東西線「茅場町」5分
- 構造規模
-
鉄筋コンクリート造
地上10階
- 契約面積
- 94.35m²(約28.54坪)
- 所在階
- 7階
入居可能時期
2026年4月上旬
備考
人形町、水天宮、茅場町の中間地点、メトロ4路線が使えるアクセスのいい立地。
人形町は江戸時代から続く商業エリアで、昔ながらの風情を楽しむことができます。
江戸時代の町並みを再現した「人形町通り」は、歴史的な建物や老舗の店が多くあります。
人形町・水天宮周辺には、江戸風情を感じさせる老舗の飲食店が多く存在します。特に、和菓子屋やうなぎ屋、寿司屋などが有名です。
特に有名なのは、甘酒横丁というエリアで、ここでは伝統的な和菓子や甘酒を楽しむことができます。
近年では、モダンなカフェやレストランも増えており、伝統と現代が融合した独特の雰囲気を楽しむことができます。
人形町・水天宮周辺は、歴史と文化が交錯する魅力的なエリアです。観光や食事、ショッピングを通じて、江戸の風情と現代の便利さを同時に楽しむことができます。
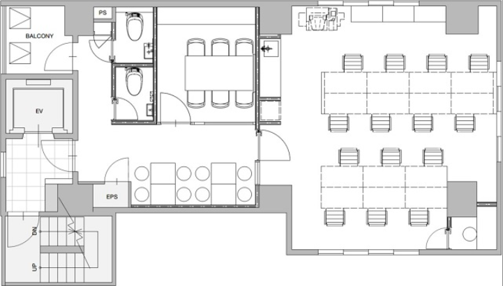
このエリアの人気のセットアップシリーズ(什器付き)Wi-Fi完備。15名前後の企業向け、ご興味のある方にはレイアウト図面、イメージパースなどの詳細資料をお送りいたします。
テレカンブース1室、6名用会議室、執務室内什器付、原状回復義務なし。人形町駅の居抜きオフィスです。
会員限定公開情報は
無料会員登録後に閲覧いただけます
間取り

同じエリアのおすすめ物件

八丁堀のセットアップオフィス 原状回復なし 敷金0相談
97.99m²〔29.64坪〕
844,740円

八丁堀駅徒歩1分のセットアップオフィス
120.79m²〔36.54坪〕
1,023,120円

茅場町エリアのリノベーションセットアップオフィス 敷金0相談
136.89m²〔41.41坪〕
911,030円

日本橋エリアの内装付きオフィス
78.80m²〔23.84坪〕
643,680円

新富町駅1分、複数路線が使えるセットアップオフィス
225.13m²〔68.10坪〕
1,430,100円

新川の格安大型居抜きオフィス
515m²〔155.79坪〕
相談
物件情報
- 賃料
740,000円
- 敷金・保証金
-
無し
※保証会社に加入することにより敷金0相談
審査の内容によっては敷金が積み増しになる可能性があります。
- 礼金
- 無し
- 償却等
- ※原状回復工事は原則クリーニング程度です
※1階の共用部が充実しています
※執務室什器付きです
- 所在地
- 中央区日本橋小網町
- 交通
- 半蔵門線「水天宮」5分
日比谷線・浅草線「人形町」5分
東西線「茅場町」5分
- 構造規模
-
鉄筋コンクリート造
地上10階
- 契約面積
- 94.35m²(約28.54坪)
- 所在階
- 7階
入居可能時期
2026年4月上旬
受付時間:平日9:00~18:00










