築地エリアのフルセットアップオフィス
問い合わせ番号:47435
物件情報
- 賃料
613,000円
- 敷金・保証金
- 8ヶ月
- 礼金
- 無し
- 償却等
- 更新料:1ヵ月
償却:1ヵ月
- 所在地
- 中央区築地
- 交通
- 有楽町線「新富町」2分
日比谷線「築地」2分
浅草線「東銀座」9分
銀座線・丸ノ内線「銀座」12分
- 構造規模
-
鉄筋コンクリート造
地下1階 地上6階
- 契約面積
- 81.08m²(約24.53坪)
- 所在階
- 5階
入居可能時期
即日入居可
備考
東京メトロ有楽町線新富町駅徒歩2分、東京メトロ日比谷線築地駅徒歩2分、都営浅草線、東京メトロ日比谷線東銀座駅徒歩9分、
1989年5月竣工、2023年に大規模リニューアル。鉄筋コンクリート造 地下1階/地上6階建ての賃貸オフィス。
OAフロア、光ファイバー、男女別トイレ、個別空調。
周辺にはセブンイレブン中央区築地2丁目店、ゆで太郎築地2丁目店、タリーズコーヒー築地一丁目店、
中央新富二郵便局があります。築地・銀座も徒歩圏でランチや会食などの選択肢も多い。
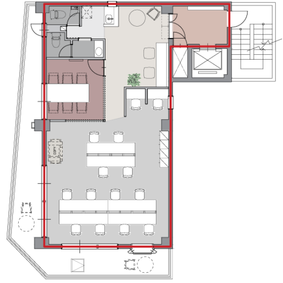
このエリアのフルセットアップオフィス、6名用の個室会議室とラウンジが設置済み。執務室は12名前後でのご利用を想定。
築地の内装付きアップオフィスです。
会員限定公開情報は
無料会員登録後に閲覧いただけます
間取り

同じエリアのおすすめ物件

銀座エリア。敷金無しのフルセットアップオフィス
中央区銀座
250.25m²〔75.70坪〕
250.25m²〔75.70坪〕
相談

銀座の大型居抜き相談オフィス
中央区銀座
396.69m²〔120.00坪〕
396.69m²〔120.00坪〕
3,600,000円

築地の格安大型居抜きオフィス
中央区築地
378.84m²〔114.60坪〕
378.84m²〔114.60坪〕
相談

馬喰町の格安居抜きオフィス
中央区日本橋馬喰町
146.48m²〔44.31坪〕
146.48m²〔44.31坪〕
相談

新富町駅1分ほか複数路線が使えるフルセットアップオフィス キッチンフロア
中央区新富
289.64m²〔87.62坪〕
289.64m²〔87.62坪〕
相談

新富町駅1分ほか複数路線が使えるフルセットアップオフィス プライベートルームフロア
中央区新富
289.64m²〔87.62坪〕
289.64m²〔87.62坪〕
相談
物件情報
- 賃料
613,000円
- 敷金・保証金
- 8ヶ月
- 礼金
- 無し
- 償却等
- 更新料:1ヵ月
償却:1ヵ月
- 所在地
- 中央区築地
- 交通
- 有楽町線「新富町」2分
日比谷線「築地」2分
浅草線「東銀座」9分
銀座線・丸ノ内線「銀座」12分
- 構造規模
-
鉄筋コンクリート造
地下1階 地上6階
- 契約面積
- 81.08m²(約24.53坪)
- 所在階
- 5階
入居可能時期
即日入居可
受付時間:平日9:00~18:00







