仲介手数料無料
人形町駅付近のセットアップオフィス
問い合わせ番号:47025
物件情報
- 賃料
1,503,600円
- 敷金・保証金
- 7カ月
- 礼金
- 無し
- 所在地
- 中央区日本橋富沢町
- 交通
- 日比谷線・浅草線「人形町」4分
新宿線「馬喰横山」6分
JR「馬喰町」8分
半蔵門線「水天宮前」11分
- 構造規模
-
鉄筋鉄骨コンクリート造
地下1階 地上9階
- 契約面積
- 207.11m²(約62.65坪)
- 所在階
- 6階
入居可能時期
2026/04/01
備考
都営浅草線、東京メトロ人形町駅4分、都営新宿線馬喰横山駅徒歩6分、JR馬喰町駅徒歩8分、
東京メトロ半蔵門線「水天宮前」11分。1992年竣工、2021年に内装・共用部をリノベーション。
鉄骨鉄筋コンクリート造地上9階、地下1階建ての賃貸オフィス。
個別空調、OAフロア、男女別トイレ (室外設置) 、機械警備、24時間利用可能。
周辺には昔ながらの商店街・老舗店があり、飲食店が豊富。老舗の和食・料亭、庶民的なお店まで幅広くあり。
銀行・郵便局・コンビニなども近く、ビジネス上の利便性が高い。
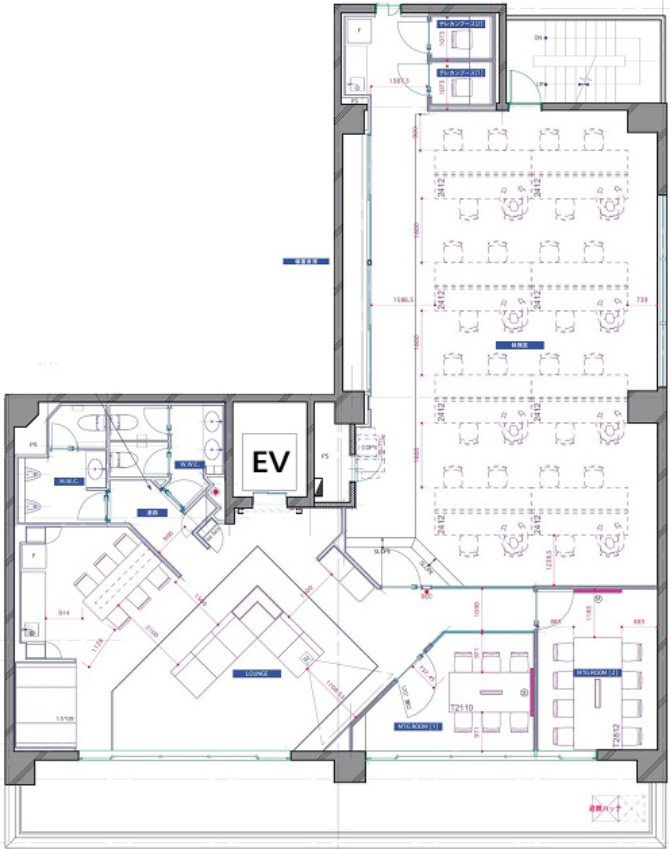
このエリアのセットアップオフィス、6名用・8名用の個室会議室・テレカンブースを設置したセットアップオフィス。
執務室は40席以上座席の確保が可能。高級感溢れるラウンジ、天井高6Mにおよぶ吹き抜けエントランスは圧巻の一言です。
人形町の内装付きオフィスです。
会員限定公開情報は
無料会員登録後に閲覧いただけます
間取り

同じエリアのおすすめ物件

茅場町エリアのセットアップオフィス
中央区日本橋蛎殻町
116.74m²〔35.31坪〕
116.74m²〔35.31坪〕
706,200円

築地エリアのバルコニー付きセットアップオフィス
中央区築地
195.06m²〔59.01坪〕
195.06m²〔59.01坪〕
1,593,000円

築地エリアのバルコニー付きセットアップオフィス
中央区築地
293.28m²〔88.72坪〕
293.28m²〔88.72坪〕
2,395,170円

日本橋馬喰町の大型居抜きオフィス 最上階
中央区日本橋馬喰町
相談

京橋エリア。共用部充実の大型ハイグレードセットアップオフィス。
中央区京橋1
739.5m²〔223.70坪〕
739.5m²〔223.70坪〕
10,066,500円

新富町エリアのセットアップオフィス
中央区新富2
79.04m²〔23.91坪〕
79.04m²〔23.91坪〕
549,930円
物件情報
- 賃料
1,503,600円
- 敷金・保証金
- 7カ月
- 礼金
- 無し
- 所在地
- 中央区日本橋富沢町
- 交通
- 日比谷線・浅草線「人形町」4分
新宿線「馬喰横山」6分
JR「馬喰町」8分
半蔵門線「水天宮前」11分
- 構造規模
-
鉄筋鉄骨コンクリート造
地下1階 地上9階
- 契約面積
- 207.11m²(約62.65坪)
- 所在階
- 6階
入居可能時期
2026/04/01
受付時間:平日9:00~18:00






