仲介手数料無料
茅場町駅前の居抜きオフィス
問い合わせ番号:44773
物件情報
- 賃料
- 相談
- 敷金・保証金
- 相談
- 所在地
- 中央区日本橋茅場町
- 交通
- 日比谷線「茅場町」 1分
京葉線 「八丁堀」7分
東西線・浅草線・銀座線「 日本橋」 7分
- 構造規模
-
鉄筋コンクリート造
地下1階 地上8階
- 契約面積
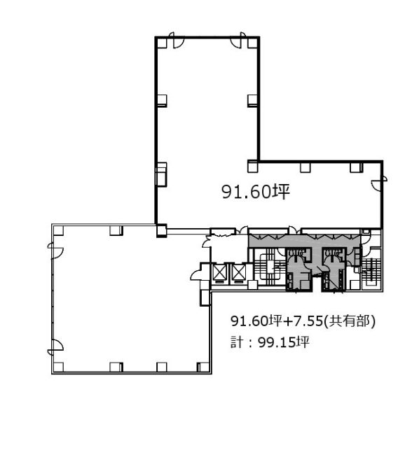
- 300m²(約90.75坪)
- 所在階
- 階数非公表
入居可能時期
相談
備考
東京メトロ日比谷線・東西線「茅場町駅」東西線、八丁堀駅(東京メトロ日比谷線/JR京葉線)日本橋駅(浅草線・東西線)、
水天宮前駅(半蔵門線)が利用可能。1991年3月竣工、2008年にエントランスや外装のリニューアル
鉄骨鉄筋コンクリート、地上8~9階建の新大橋通り面した賃貸オフィス。1階にはカフェが入居中。
機械警備・オートロック、駐車場(機械式、最大14台)
郵便局、銀行、コンビニ、ドラッグストアが徒歩圏。コレド日本橋や日本橋高島屋などへの近く、店舗や飲食店が多いエリアです。
このエリアの居抜き相談オフィス、ご興味のおありの方は会員登録の上、詳細をご確認ください。
45名前後の企業向け、茅場町の内装付きオフィスです。
会員限定公開情報は
無料会員登録後に閲覧いただけます
間取り

同じエリアのおすすめ物件

茅場町エリアのセットアップオフィス (ラウンジ・テレカンブース3室、6名用・10名用会議室)※会議室、ラウンジは什器設置済
中央区新川1
284.2m²〔85.97坪〕
284.2m²〔85.97坪〕
2,063,280円

茅場町エリアのセットアップオフィス
中央区日本橋蛎殻町
116.74m²〔35.31坪〕
116.74m²〔35.31坪〕
706,200円

築地エリアのバルコニー付きセットアップオフィス
中央区築地
195.06m²〔59.01坪〕
195.06m²〔59.01坪〕
1,593,000円

築地エリアのバルコニー付きセットアップオフィス
中央区築地
293.28m²〔88.72坪〕
293.28m²〔88.72坪〕
2,395,170円

日本橋馬喰町の大型居抜きオフィス 最上階
中央区日本橋馬喰町
相談

京橋エリア。共用部充実の大型ハイグレードセットアップオフィス。
中央区京橋1
739.5m²〔223.70坪〕
739.5m²〔223.70坪〕
10,066,500円
物件情報
- 賃料
- 相談
- 敷金・保証金
- 相談
- 所在地
- 中央区日本橋茅場町
- 交通
- 日比谷線「茅場町」 1分
京葉線 「八丁堀」7分
東西線・浅草線・銀座線「 日本橋」 7分
- 構造規模
-
鉄筋コンクリート造
地下1階 地上8階
- 契約面積
- 300m²(約90.75坪)
- 所在階
- 階数非公表
入居可能時期
相談
受付時間:平日9:00~18:00





