仲介手数料無料
宝町の格安居抜き相談オフィス
問い合わせ番号:44455
物件情報
- 賃料
- 相談
- 敷金・保証金
- 相談
- 所在地
- 中央区八丁堀
- 交通
- 浅草線 「宝町」 3分
日比谷線 「八丁堀」 5分
銀座線 「京橋」 6分
- 構造規模
-
鉄筋鉄骨コンクリート造
地上8階
- 契約面積
- 340m²(約102.85坪)
- 所在階
- 3階
入居可能時期
相談
備考
都営浅草線「宝町」駅徒歩3分(A2出口から2〜3分) 東京メトロ日比谷線・JR京葉線「八丁堀」駅徒歩5分、
東京メトロ銀座線「京橋」駅徒歩6分、東京メトロ有楽町線「新富町」駅徒歩7分。
1989年に竣工、鉄骨鉄筋コンクリート造8階建ての賃貸オフィス。機械警備、男女別トイレ、AEDなどを完備 。
鍛冶橋通りなど大通りから一歩入った比較的落ち着いた環境。
セブンイレブン 中央区八丁堀4丁目店、ミニストップが徒歩圏。
飲食店やランチスポット、多種のショップ、郵便局や銀行などがすぐ近くにあり便利。
このエリアの居抜き相談オフィス、ご興味のおありの方は会員登録の上、詳細をご確認ください。
50名前後の企業向け、宝町の内装付きオフィスです。
会員限定公開情報は
無料会員登録後に閲覧いただけます
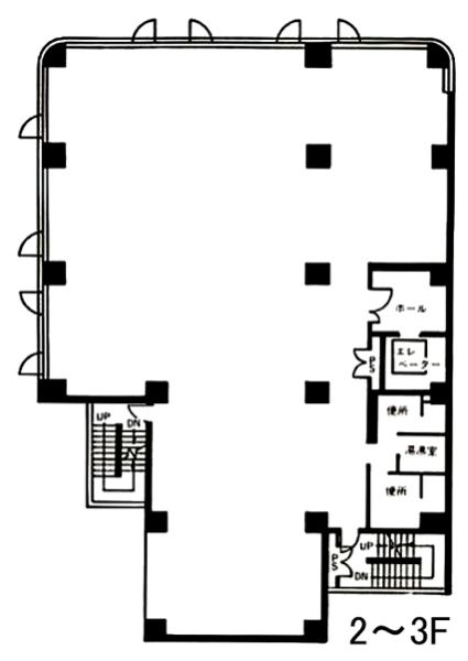
間取り

同じエリアのおすすめ物件

茅場町エリアのセットアップオフィス (ラウンジ・テレカンブース3室、6名用・10名用会議室)※会議室、ラウンジは什器設置済
中央区新川1
284.2m²〔85.97坪〕
284.2m²〔85.97坪〕
2,063,280円

茅場町エリアのセットアップオフィス
中央区日本橋蛎殻町
116.74m²〔35.31坪〕
116.74m²〔35.31坪〕
706,200円

築地エリアのバルコニー付きセットアップオフィス
中央区築地
195.06m²〔59.01坪〕
195.06m²〔59.01坪〕
1,593,000円

築地エリアのバルコニー付きセットアップオフィス
中央区築地
293.28m²〔88.72坪〕
293.28m²〔88.72坪〕
2,395,170円

日本橋馬喰町の大型居抜きオフィス 最上階
中央区日本橋馬喰町
相談

京橋エリア。共用部充実の大型ハイグレードセットアップオフィス。
中央区京橋1
739.5m²〔223.70坪〕
739.5m²〔223.70坪〕
10,066,500円
物件情報
- 賃料
- 相談
- 敷金・保証金
- 相談
- 所在地
- 中央区八丁堀
- 交通
- 浅草線 「宝町」 3分
日比谷線 「八丁堀」 5分
銀座線 「京橋」 6分
- 構造規模
-
鉄筋鉄骨コンクリート造
地上8階
- 契約面積
- 340m²(約102.85坪)
- 所在階
- 3階
入居可能時期
相談
受付時間:平日9:00~18:00



