兜町のセットアップオフィス
問い合わせ番号:41394成約済み
物件情報
- 賃料
- 800,541円 
- 敷金・保証金
- 4カ月
- 所在地
- 中央区日本橋兜町
- 交通
- JR「東京駅」8分
 日比谷線・東西線「茅場町」5分
 浅草線・銀座線「日本橋」6分
- 構造規模
- 
											鉄筋コンクリート造
 地上6階
- 契約面積
- 101.79m²(約30.79坪)
- 所在階
- 1階
入居可能時期
相談
備考
複数路線が使える茅場町、日本橋そして東京駅も徒歩圏の好立地。
このエリアは、歴史的に日本の金融経済の中心地として知られています。
明治時代には、渋沢栄一が第一国立銀行や東京株式取引所(現・東京証券取引所)を設立し、兜町は「証券の街」として発展しました。
兜町を訪れる際には、これらの新旧のスポットを巡り、街の変遷と現在の活気を体感してみてはいかがでしょうか。
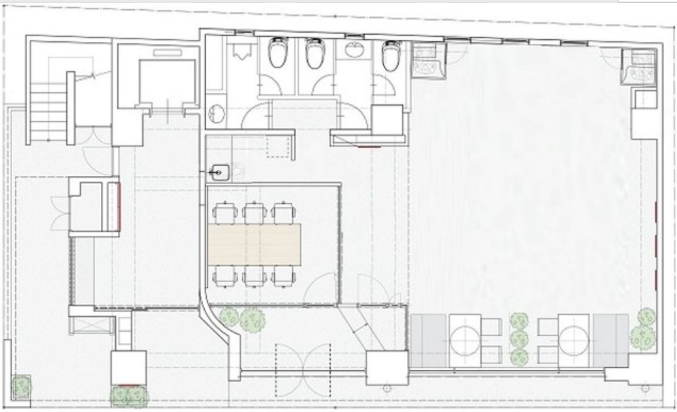
このエリアのセットアップオフィス、受付、6名会議室を完備。15名前後の企業向け、茅場町の内装付きオフィスです。
会員限定公開情報は
無料会員登録後に閲覧いただけます
										
									03-6260-9380
受付時間:平日9:00~18:00
間取り

同じエリアのおすすめ物件

日本橋の大型一棟貸居抜きオフィス
																								中央区日本橋本町
8580m²〔2595.45坪〕
																						8580m²〔2595.45坪〕
相談

敷金・原状回復工事無し!日本橋エリアのフルセットアップオフィス
																								中央区日本橋小網町
94.35m²〔28.54坪〕
																						94.35m²〔28.54坪〕
740,000円

敷金・原状回復工事無し!日本橋エリアのフルセットアップオフィス
																								中央区日本橋小網町
94.35m²〔28.54坪〕
																						94.35m²〔28.54坪〕
740,000円

八丁堀エリアの内装付きオフィス。
																								中央区八丁堀3
73.72m²〔22.30坪〕
																						73.72m²〔22.30坪〕
446,000円

築地エリアのフルセットアップオフィス
																								中央区築地
81.08m²〔24.53坪〕
																						81.08m²〔24.53坪〕
613,000円

複数路線が利用できる居抜きオフィス
																								中央区東日本橋 
277.58m²〔83.97坪〕
																						277.58m²〔83.97坪〕
相談
物件情報
- 賃料
- 800,541円 
- 敷金・保証金
- 4カ月
- 所在地
- 中央区日本橋兜町
- 交通
- JR「東京駅」8分
 日比谷線・東西線「茅場町」5分
 浅草線・銀座線「日本橋」6分
- 構造規模
- 
											鉄筋コンクリート造
 地上6階
- 契約面積
- 101.79m²(約30.79坪)
- 所在階
- 1階
入居可能時期
相談
受付時間:平日9:00~18:00



 
							
 
																				 
																			
																				 
																				 
																			
																				 
																			
																				 
																				 
																				 
																				







 
								 
			 
			