築地のセットアップオフィス(什器付き)
問い合わせ番号:35438成約済み
物件情報
- 賃料
1,292,720円
- 敷金・保証金
-
相談
※保証会社に加入することにより敷金0相談
審査の内容によっては敷金が積み増しになる可能性があります。
- 所在地
- 中央区築地7
- 交通
- 日比谷線「築地」4分
有楽町線「新富町」6分
日比谷線「東銀座」10分
浅草線「東銀座」10分
- 構造規模
-
鉄筋コンクリート造
地上7階
- 契約面積
- 164.37m²(約49.72坪)
- 所在階
- 3階
入居可能時期
相談
備考
日比谷線築地駅至近、そのほかにも複数路線が使えるアクセスのいい立地。
目の前には公園があり、緑があふれるすごしやすい環境。
隅田川も近く気分転換の散歩にも最適。
このエリアのセットアップオフィスで什器付き。
25人前後の企業向け、ご興味がおありの方はお問合せください。
詳細資料をお送りいたします。築地の内装付きオフィスです。
会員限定公開情報は
無料会員登録後に閲覧いただけます
03-6260-9380
受付時間:平日9:00~18:00
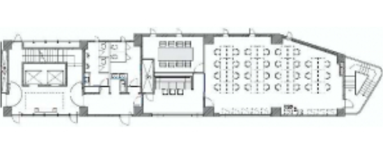
間取り

同じエリアのおすすめ物件

京橋駅徒歩圏のシェアオフィス ※10名想定
中央区新富
24.40m²〔7.38坪〕
24.40m²〔7.38坪〕
605,000円

京橋駅徒歩圏のシェアオフィス ※9名想定
中央区新富
19.20m²〔5.81坪〕
19.20m²〔5.81坪〕
544,500円

京橋駅徒歩圏のシェアオフィス ※8名想定
中央区新富
22.80m²〔6.90坪〕
22.80m²〔6.90坪〕
484,000円

京橋駅徒歩圏のシェアオフィス ※5名想定
中央区新富
11.60m²〔3.51坪〕
11.60m²〔3.51坪〕
302,000円

京橋駅徒歩圏のシェアオフィス ※6名想定
中央区新富
13.60m²〔4.11坪〕
13.60m²〔4.11坪〕
363,000円

敷金無し相談可能。人形町エリアの内装付きオフィス。
中央区日本橋久松町
276.96m²〔83.78坪〕
276.96m²〔83.78坪〕
相談
物件情報
- 賃料
1,292,720円
- 敷金・保証金
-
相談
※保証会社に加入することにより敷金0相談
審査の内容によっては敷金が積み増しになる可能性があります。
- 所在地
- 中央区築地7
- 交通
- 日比谷線「築地」4分
有楽町線「新富町」6分
日比谷線「東銀座」10分
浅草線「東銀座」10分
- 構造規模
-
鉄筋コンクリート造
地上7階
- 契約面積
- 164.37m²(約49.72坪)
- 所在階
- 3階
入居可能時期
相談
受付時間:平日9:00~18:00








