大手町駅徒歩圏のセットアップオフィス
問い合わせ番号:53863
物件情報
- 賃料
437,760円
- 共益費
- 72,960円
- 敷金・保証金
- 5ヶ月
- 礼金
- 無し
- 償却等
- 償却 賃料の1か月分
- 所在地
- 千代田区内神田
- 交通
- 丸ノ内線・千代田線・半蔵門線等「大手町」5分
JR・銀座線「神田」5分
新宿線「小川町」7分
JR「東京」10分
- 構造規模
-
鉄筋鉄骨コンクリート造
地上8階
- 契約面積
- 80.42m²(約24.33坪)
- 所在階
- 1階
入居可能時期
2026/09/11
備考
東京メトロ丸ノ内線 大手町駅まで徒歩5分、JR 神田駅まで徒歩5分、
都営新宿線 小川町駅まで徒歩7分、東京メトロ丸ノ内線 淡路町駅まで徒歩8分、
東京メトロ千代田線 新御茶ノ水駅まで徒歩9分、1997年4月竣工、鉄骨鉄筋コンクリート造地下1階付8階建の賃貸オフィス。
EV 2基、天井高:2500㎜、床仕様:OAフロア個別空調、トイレ専用男女別洋式、機械警備、EV不停止機能付、エントランスセキュリティ。
周辺は大手町・神田のオフィス街に位置し、周囲に多くのオフィスビルが並ぶエリアです。幹線通りから少し入った比較的落ち着いた環境。
徒歩圏にコンビニエンスストア、郵便局・ドラッグストアなどがあります。
このエリアの居抜きオフィス、カーテンウォールのスタイリッシュな外観で2面採光の明るい室内も魅力。
そして居抜き相談オフィスで什器もついている。ご興味のおありの方はお問合せください。詳細資料をお送りいたします。
15名程度の企業向け、神田大手町の内装付きオフィスです。
会員限定公開情報は
無料会員登録後に閲覧いただけます
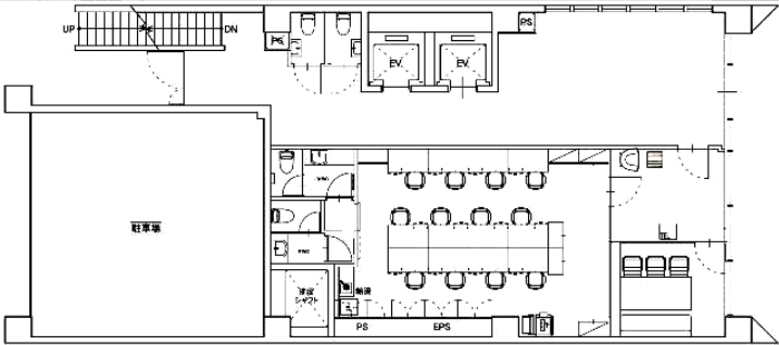
間取り

同じエリアのおすすめ物件

秋葉原のセットアップオフィス(什器付き)
千代田区岩本町
105.07m²〔31.78坪〕
105.07m²〔31.78坪〕
746,830円

岩本町駅至近の敷金0相談フルセットアップオフィス(原状回復なし)
千代田区岩本町
63.11m²〔19.09坪〕
63.11m²〔19.09坪〕
534,520円

複数路線が使える神保町のセットアップオフィス
千代田区神田錦町
137.81m²〔41.69坪〕
137.81m²〔41.69坪〕
相談

内幸町エリアの居抜きオフィス
千代田区内幸町1
782m²〔236.56坪〕
782m²〔236.56坪〕
相談

駐車場設備有!神保町エリアのバルコニー付き1棟貸し物件
千代田区神田神保町
298.42m²〔90.27坪〕
298.42m²〔90.27坪〕
2,200,000円

飯田橋駅徒歩1分の好立地内装付きオフィス 受付、4名用会議室×1室、会議室什器付き
千代田区飯田橋3
56.23m²〔17.01坪〕
56.23m²〔17.01坪〕
476,280円
物件情報
- 賃料
437,760円
- 共益費
- 72,960円
- 敷金・保証金
- 5ヶ月
- 礼金
- 無し
- 償却等
- 償却 賃料の1か月分
- 所在地
- 千代田区内神田
- 交通
- 丸ノ内線・千代田線・半蔵門線等「大手町」5分
JR・銀座線「神田」5分
新宿線「小川町」7分
JR「東京」10分
- 構造規模
-
鉄筋鉄骨コンクリート造
地上8階
- 契約面積
- 80.42m²(約24.33坪)
- 所在階
- 1階
入居可能時期
2026/09/11
受付時間:平日9:00~18:00



